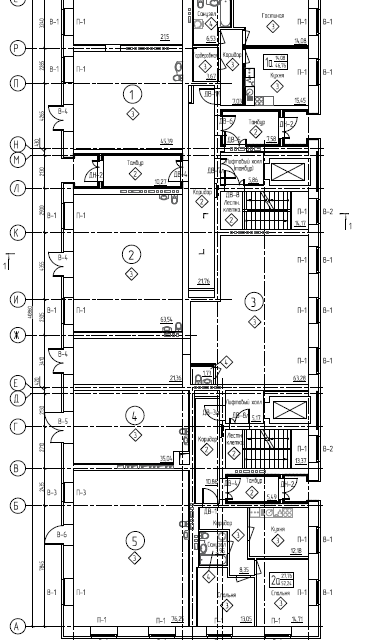
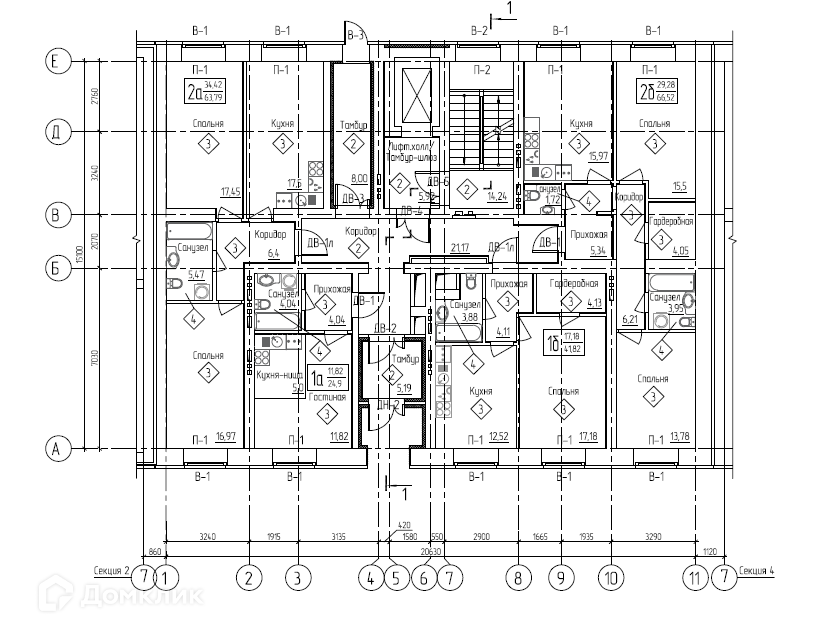
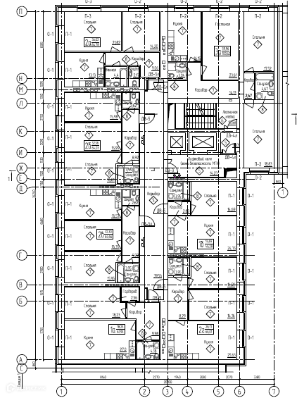
Жк огни проспекта саранск