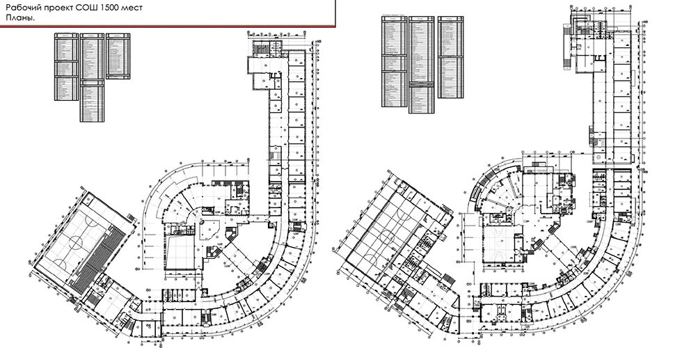
Здание образует в плане п образную композицию