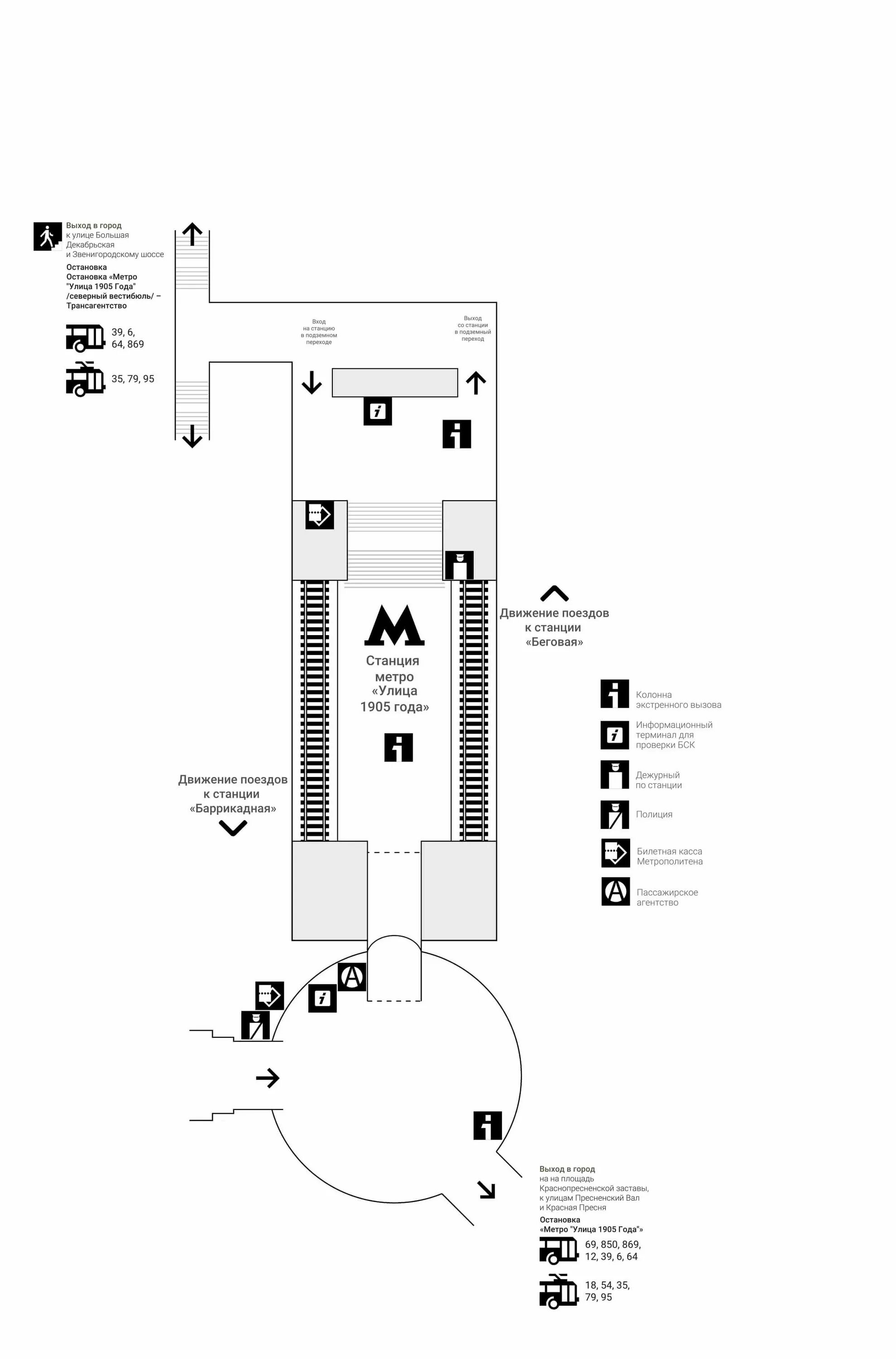
Выход 1 1905