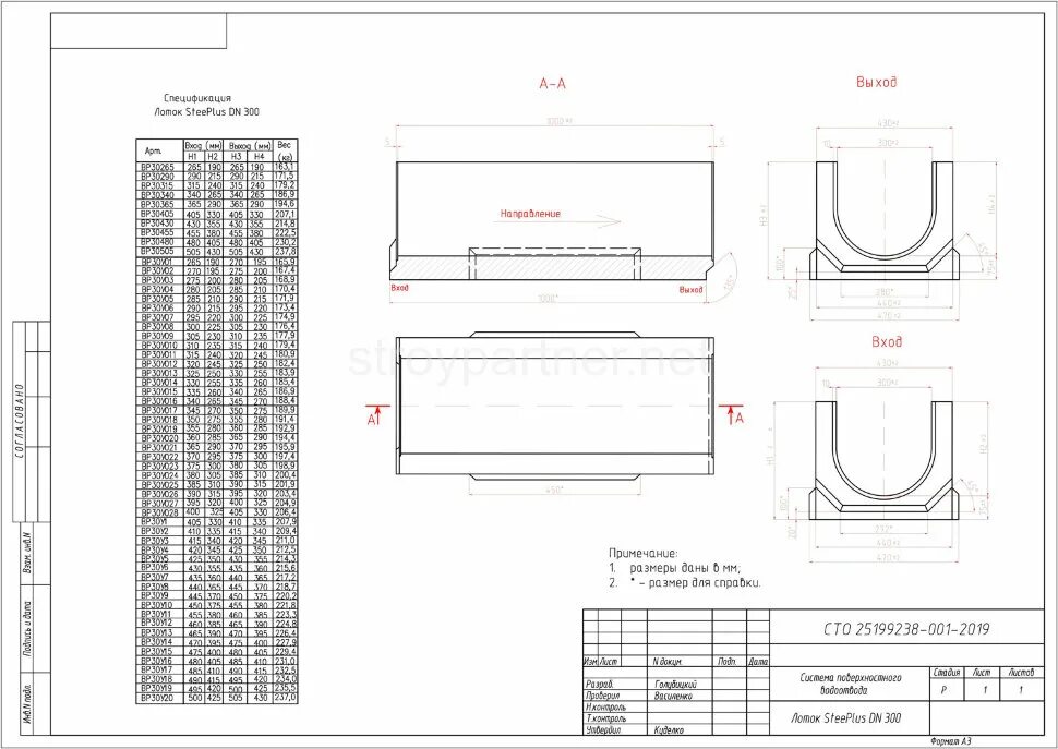
Вместимость лотка