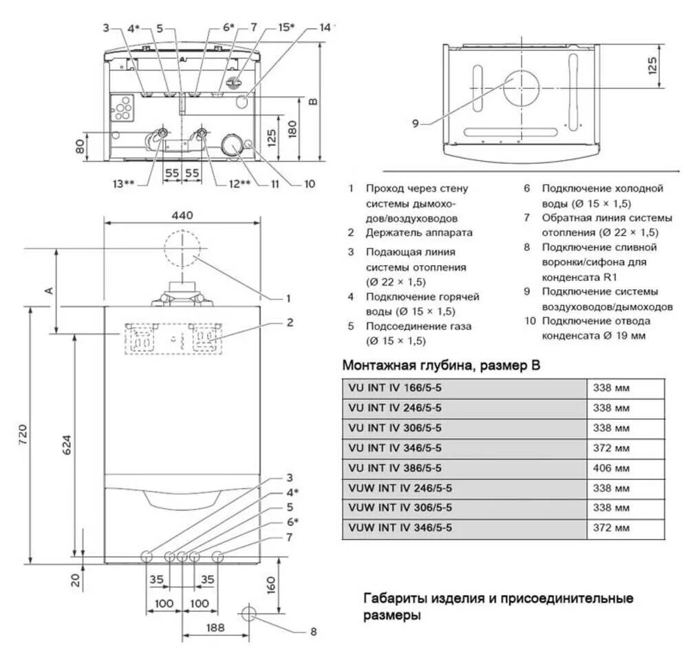
Vaillant vu int