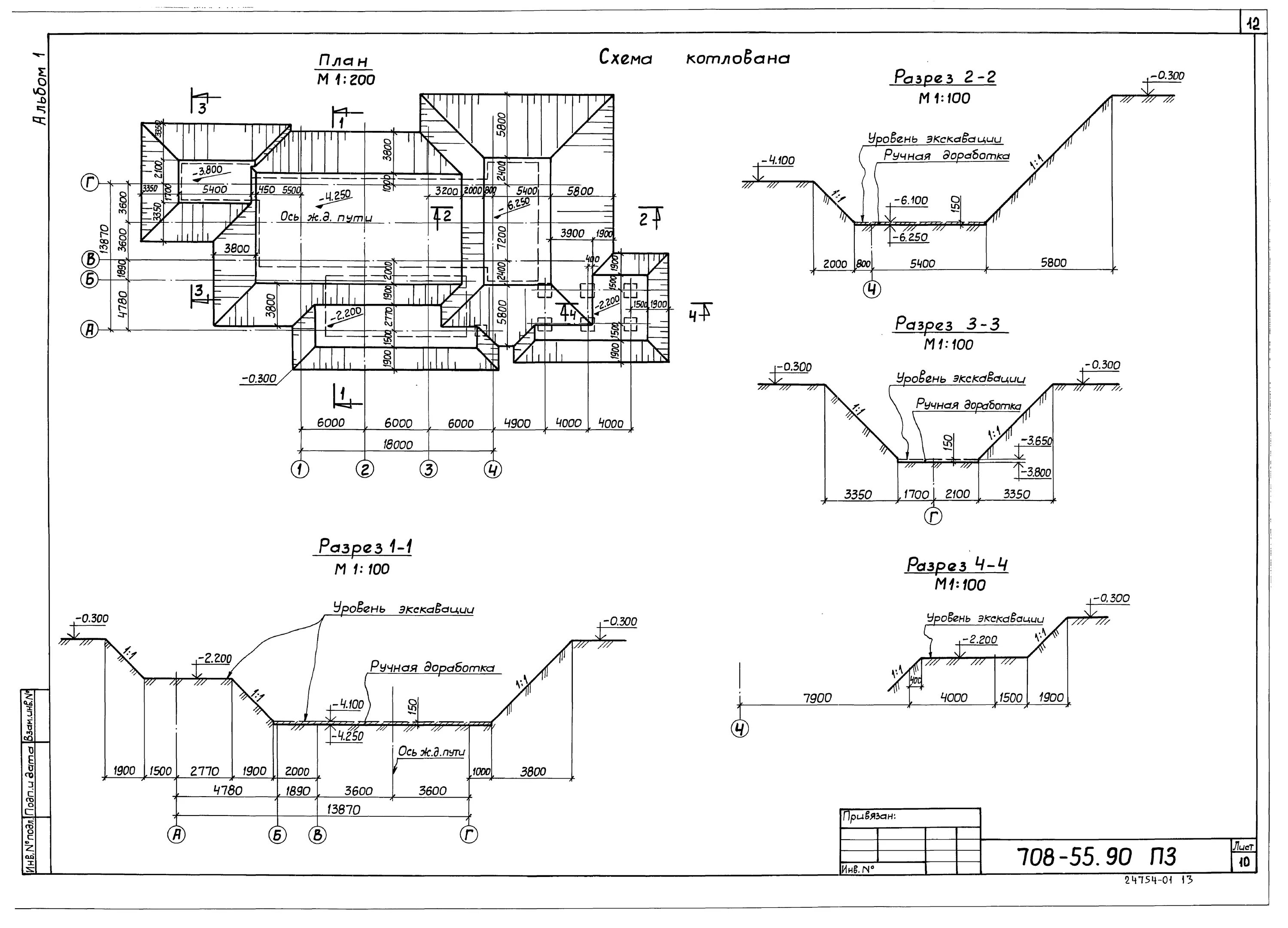
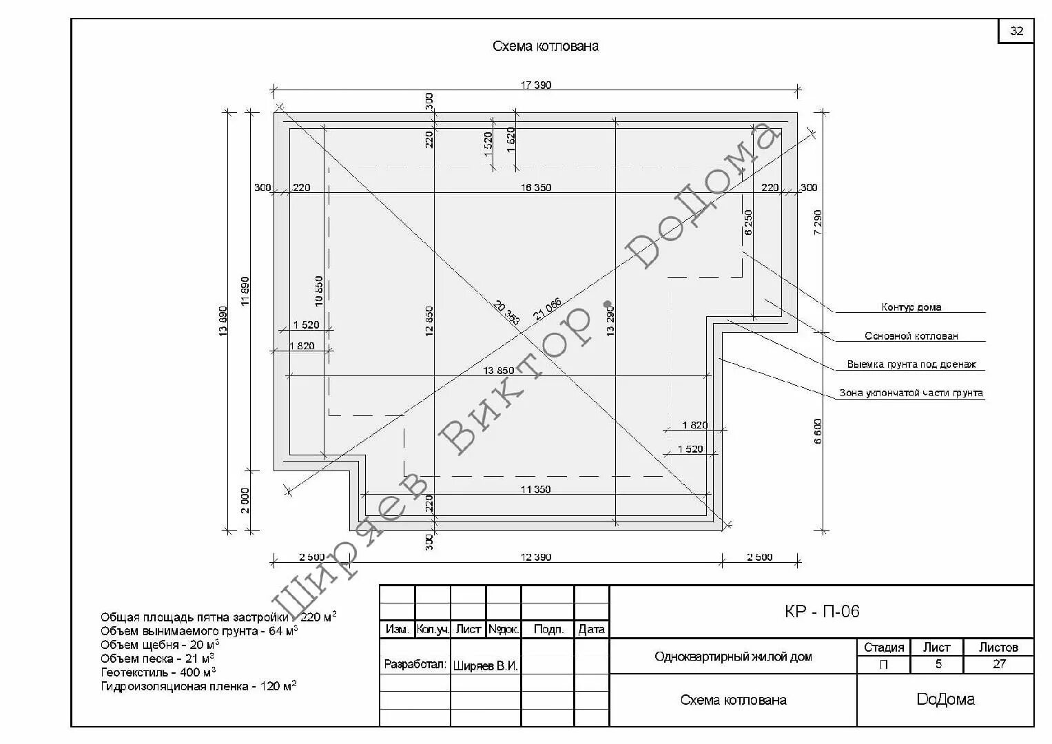
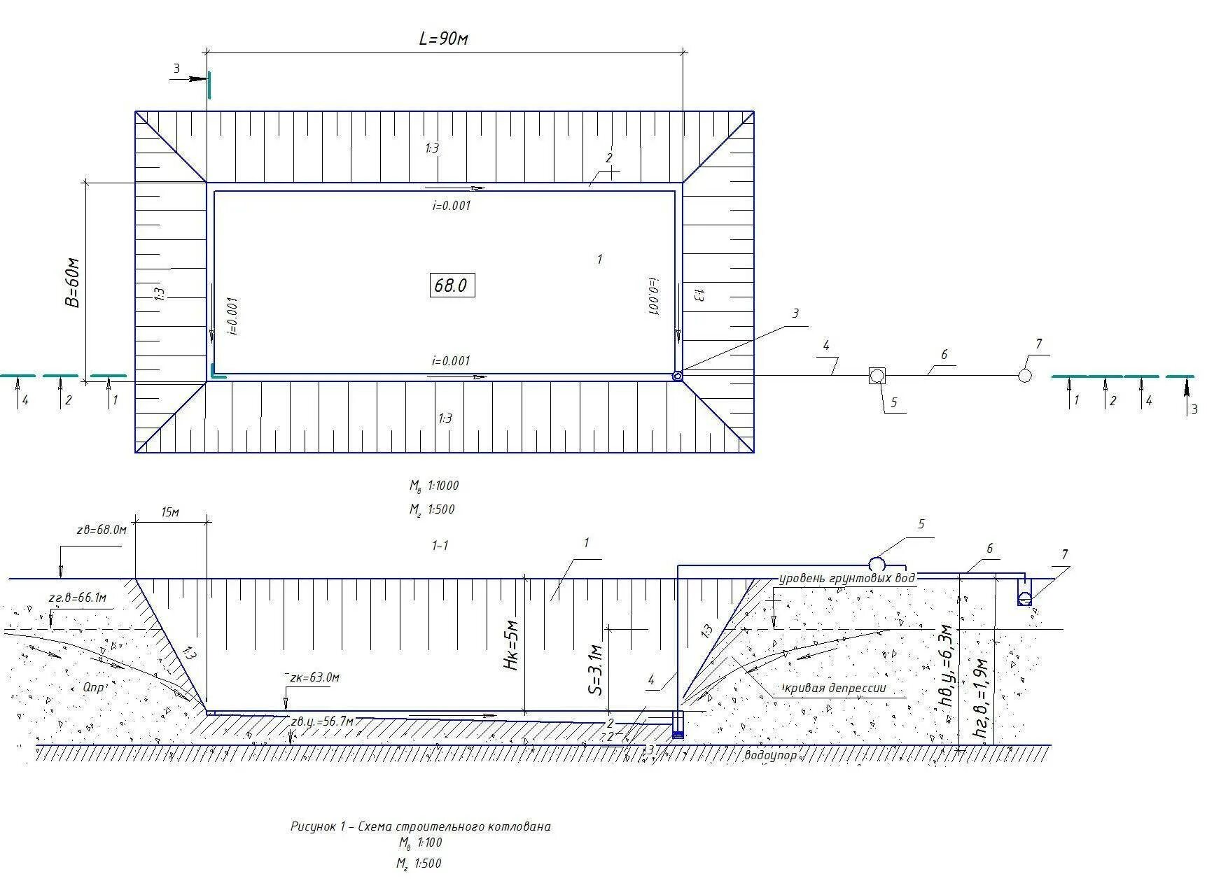
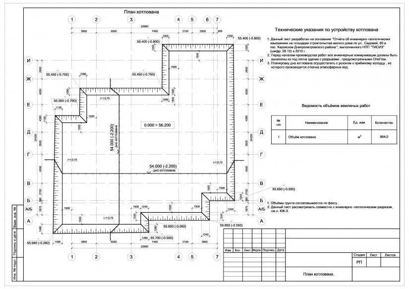
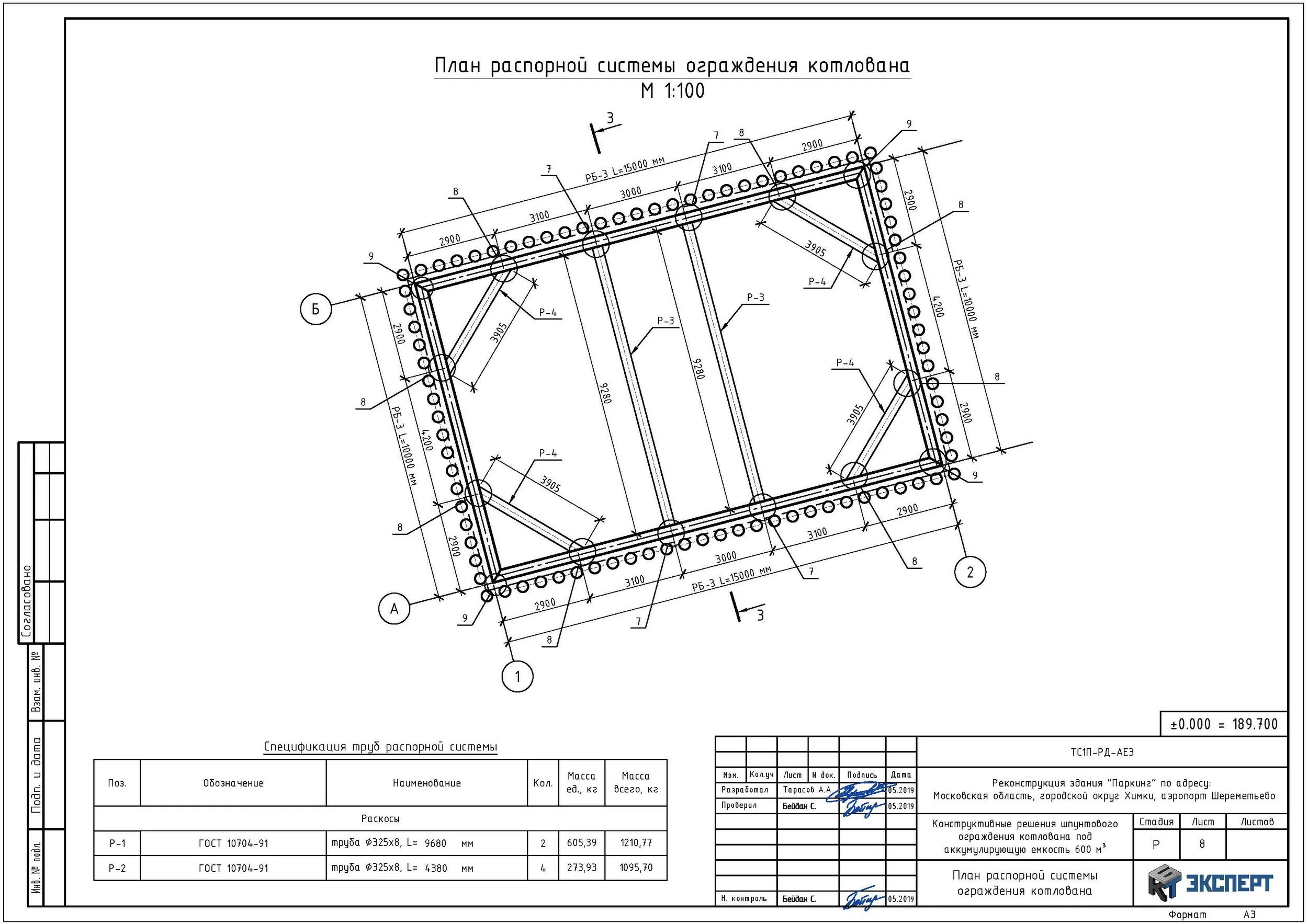
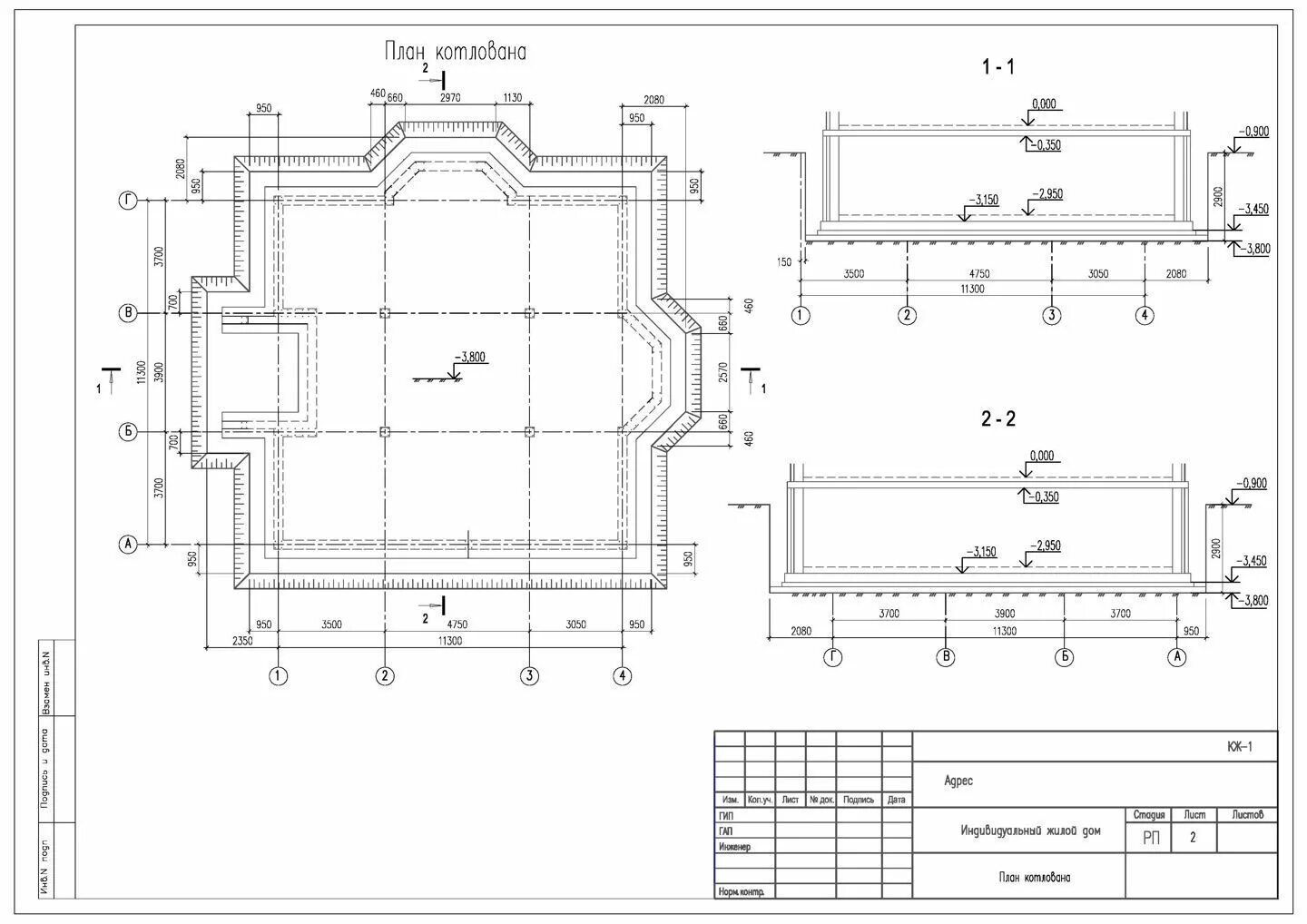
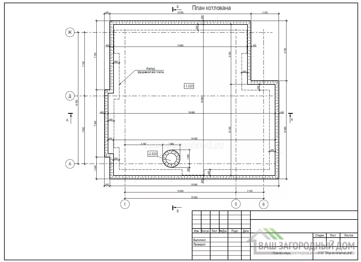
В каком разделе котлован