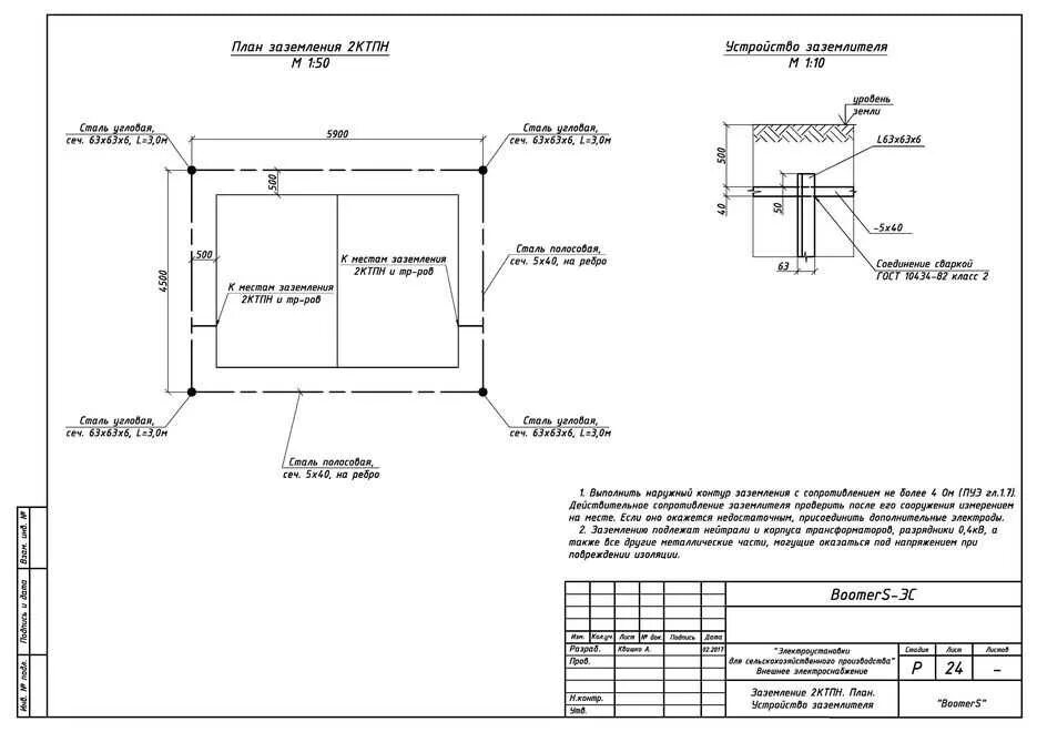
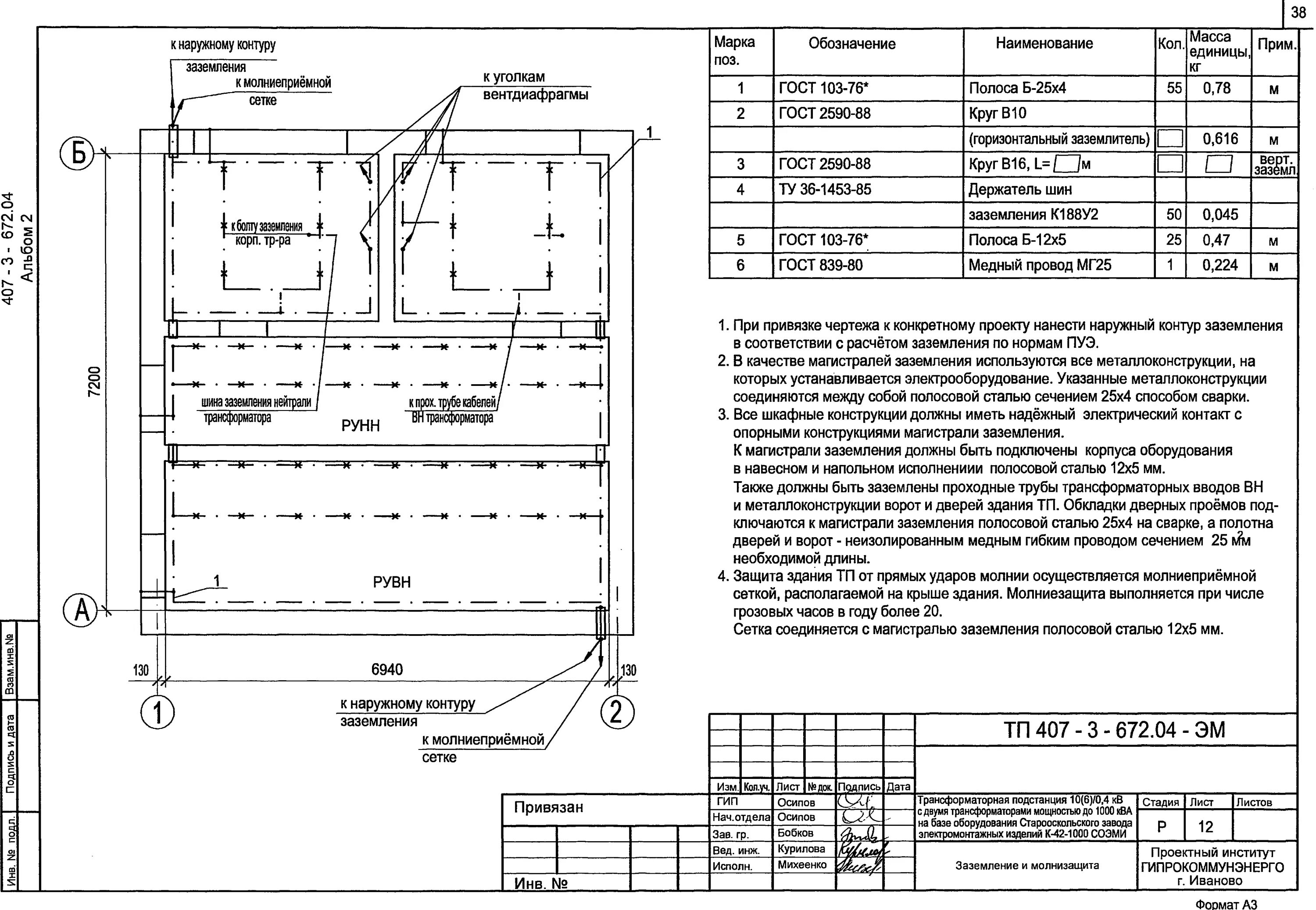
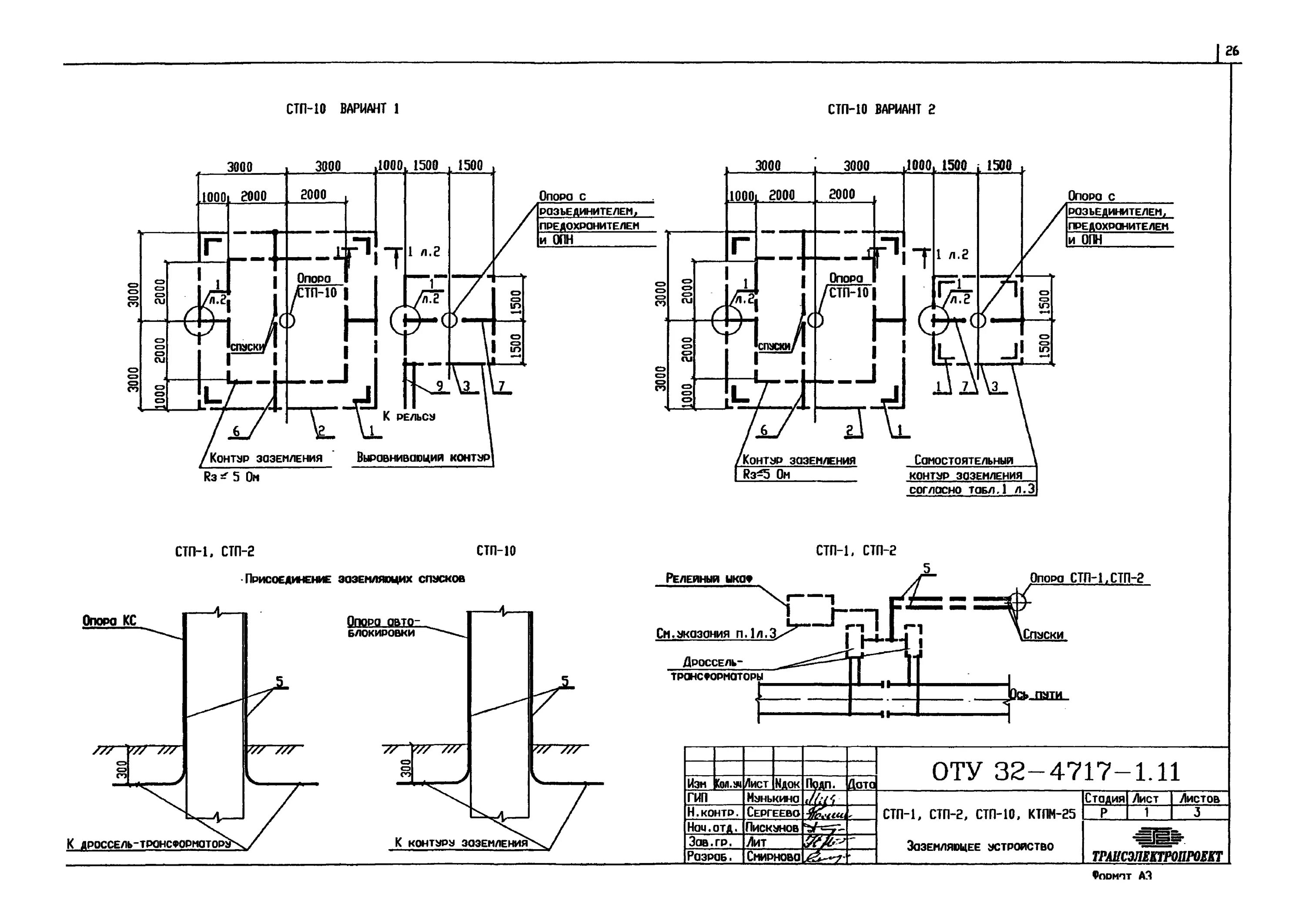
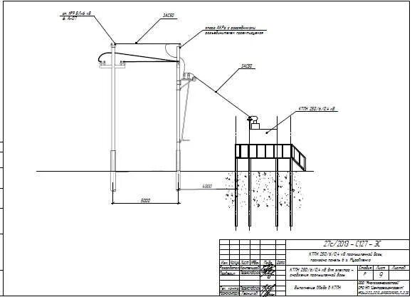
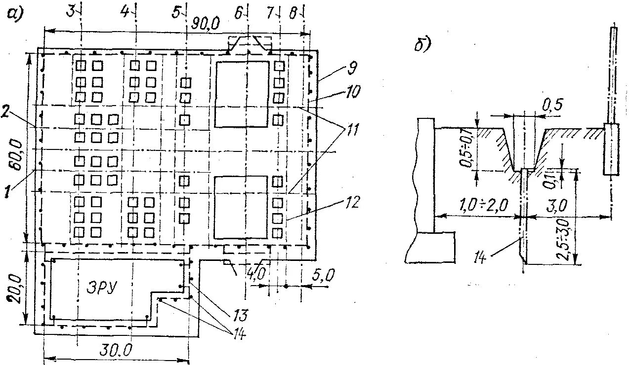
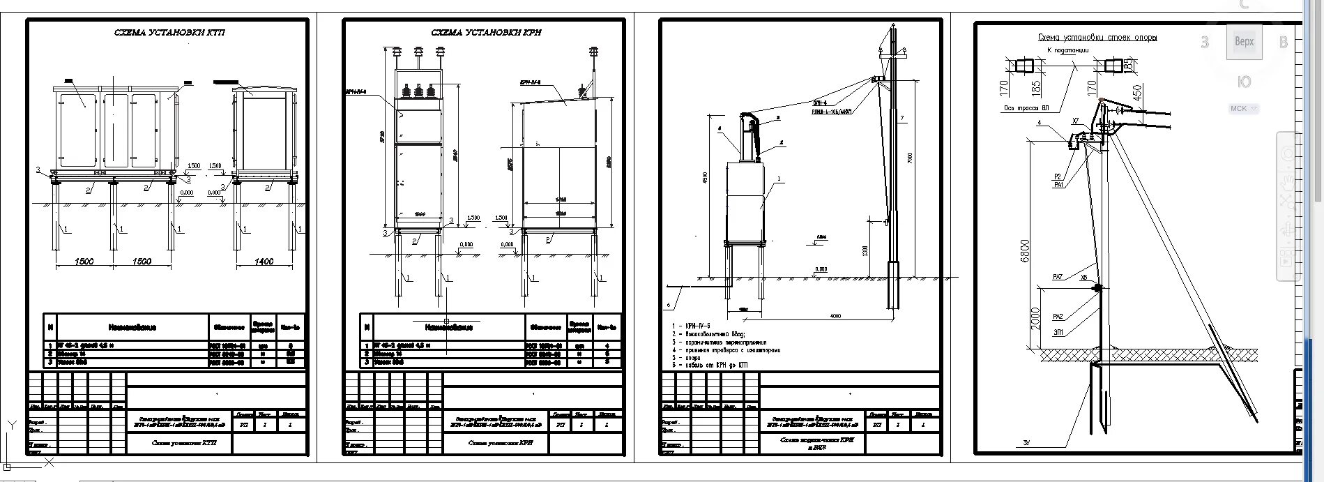
Устройство заземляющего устройства подстанции