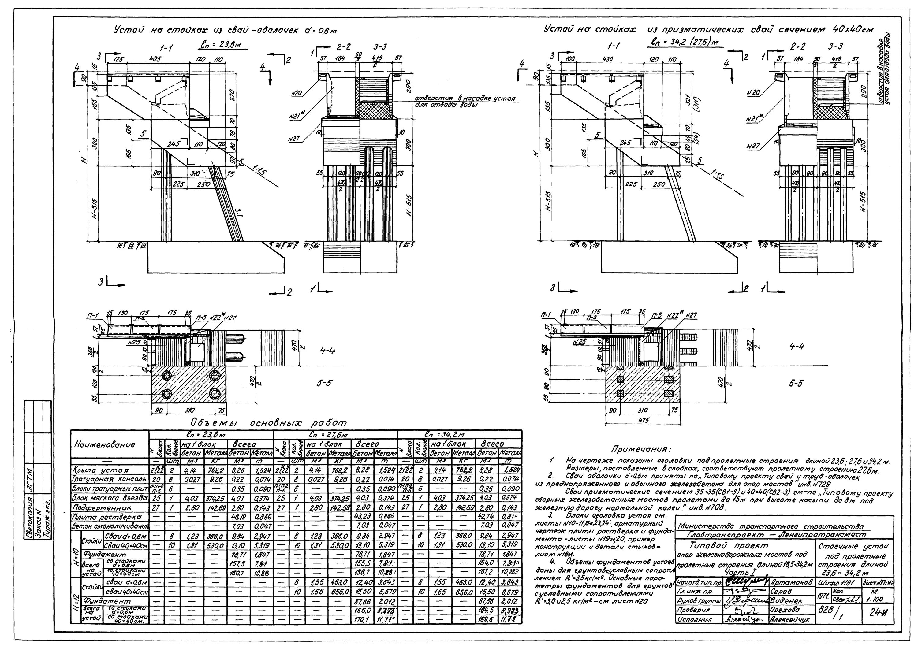
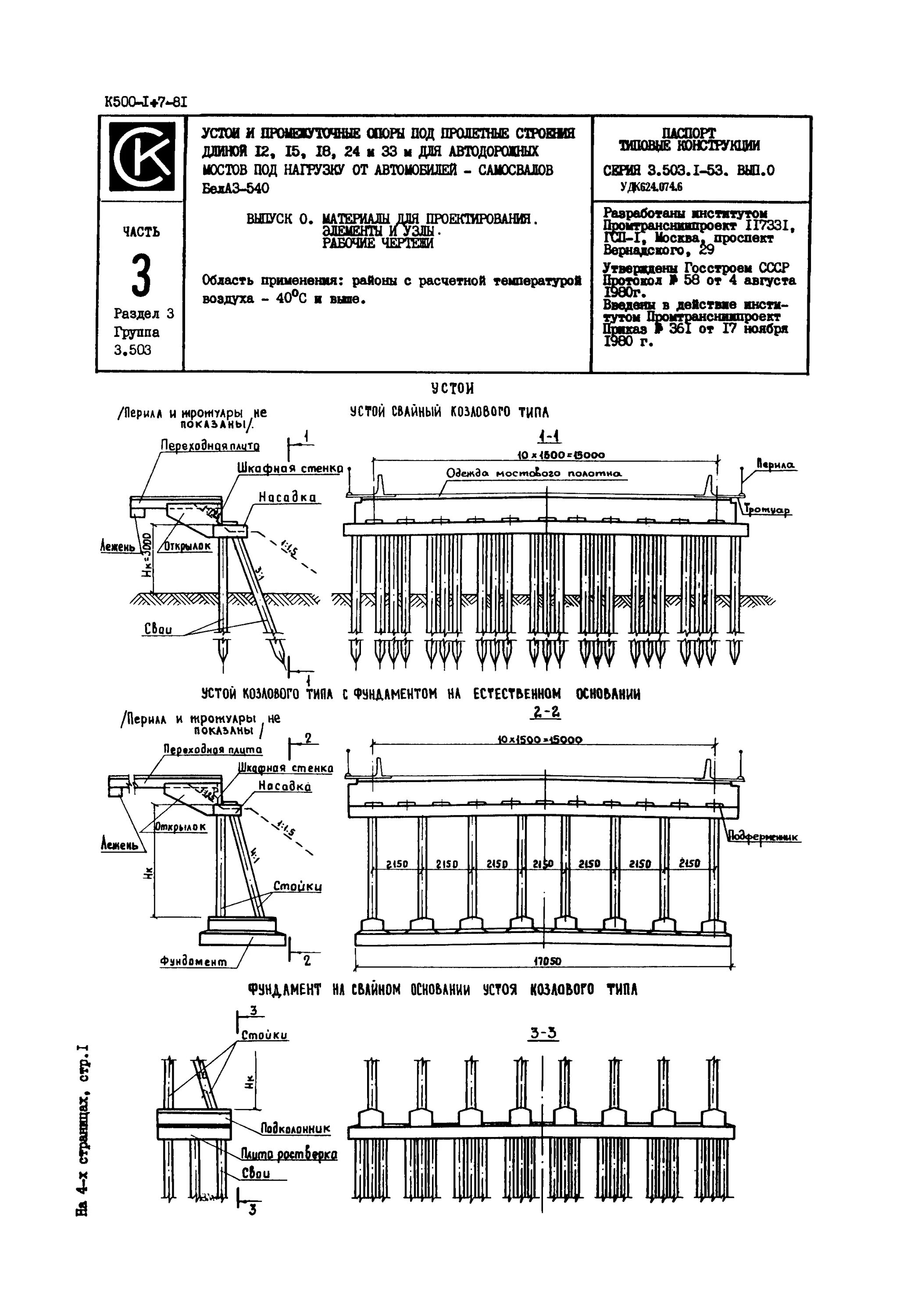
Устои сайт