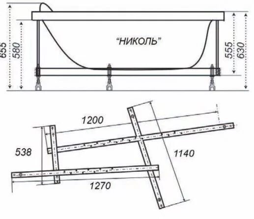
Установка ванной тритон