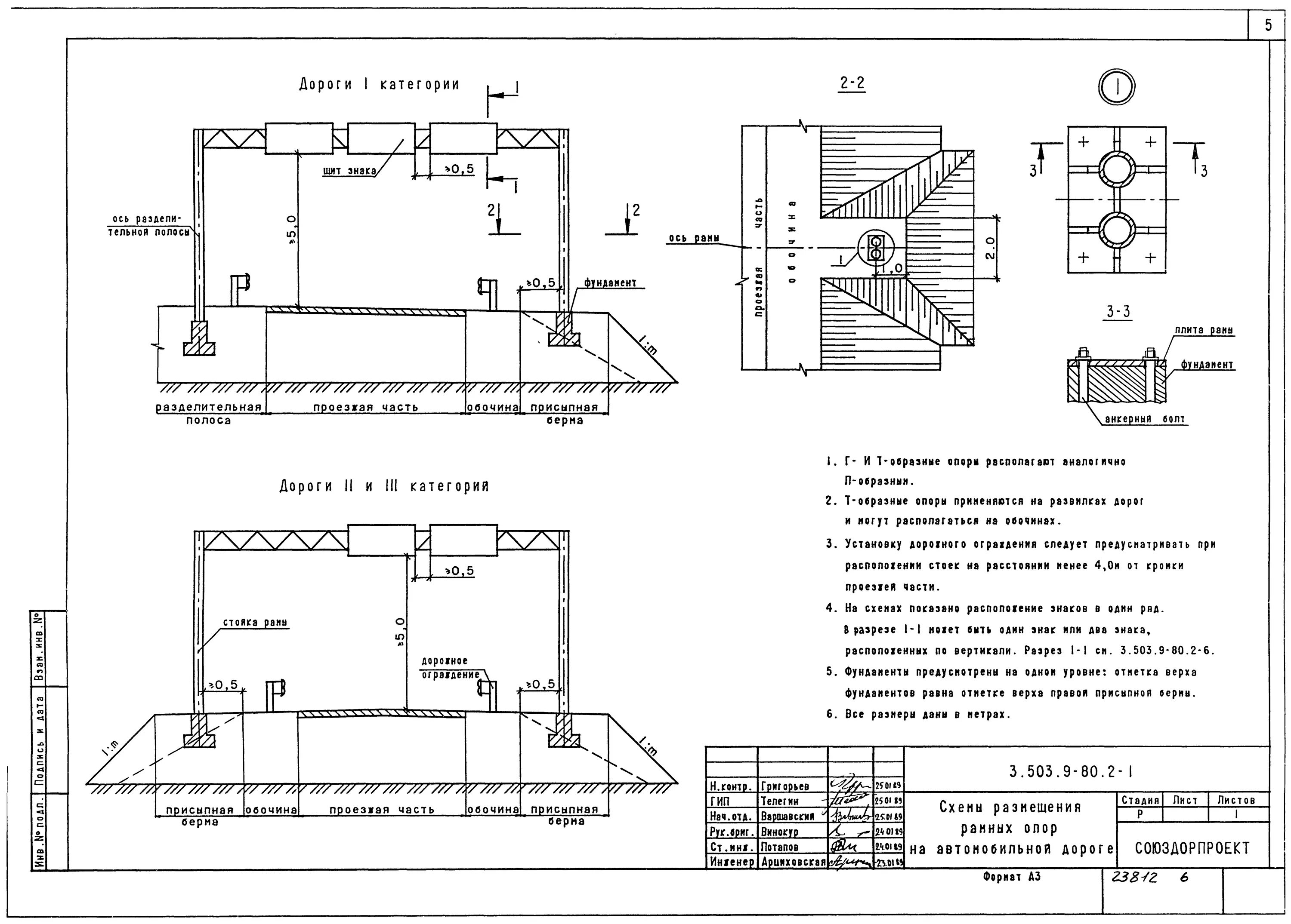
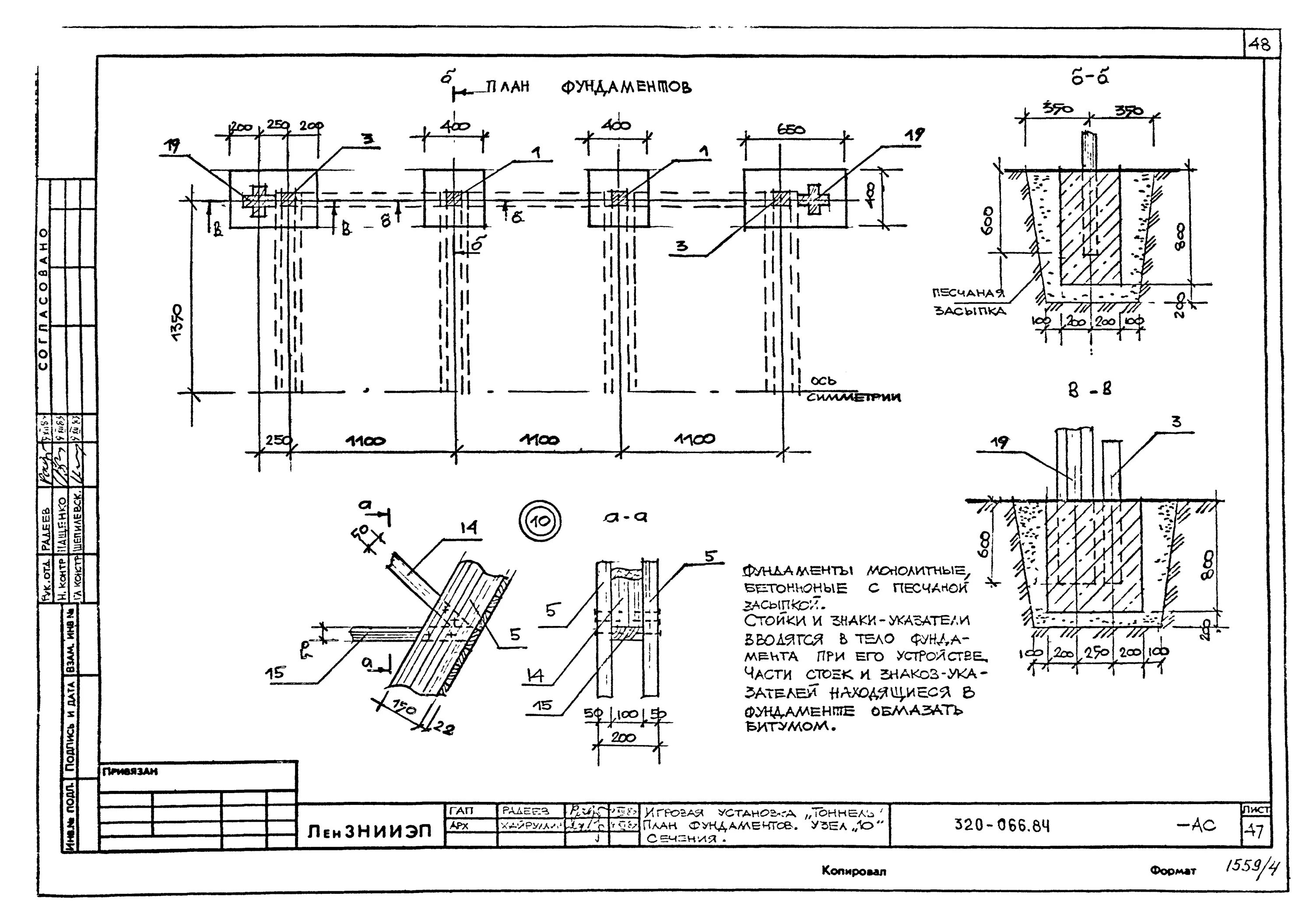
Установка дорожных знаков фундамент