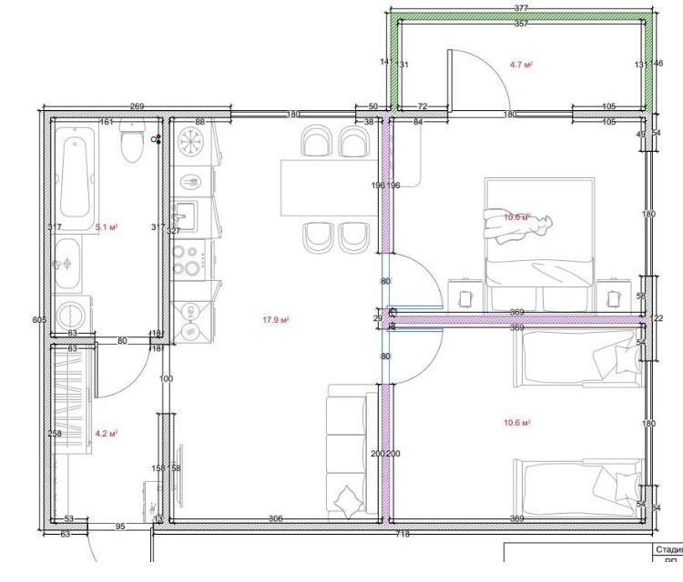
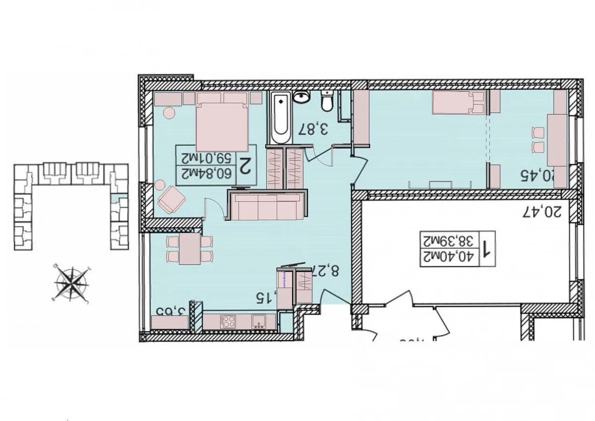
Трешка рп