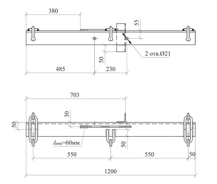
Траверсы тм 2001