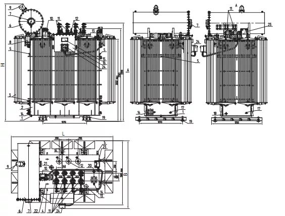
Трансформатор нн