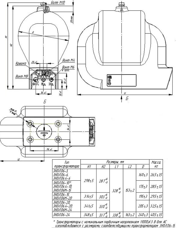
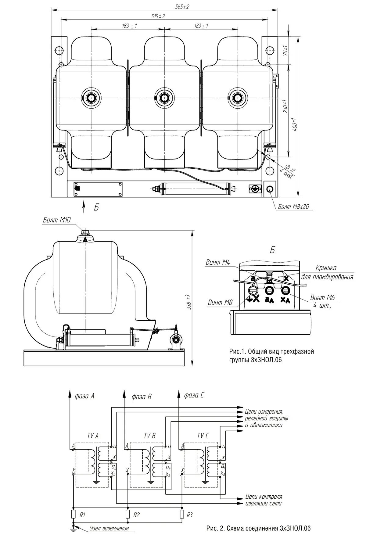
Трансформатор напряжения знол 6