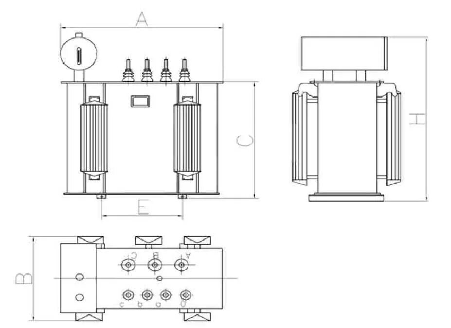
Трансформатор 630 кв