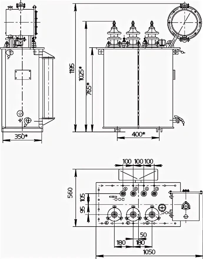
Трансформатор 63 6