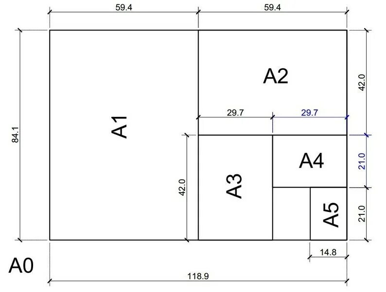
Толщина листа формата а4 в мм