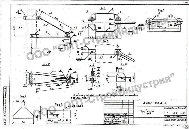
Тм 15 1