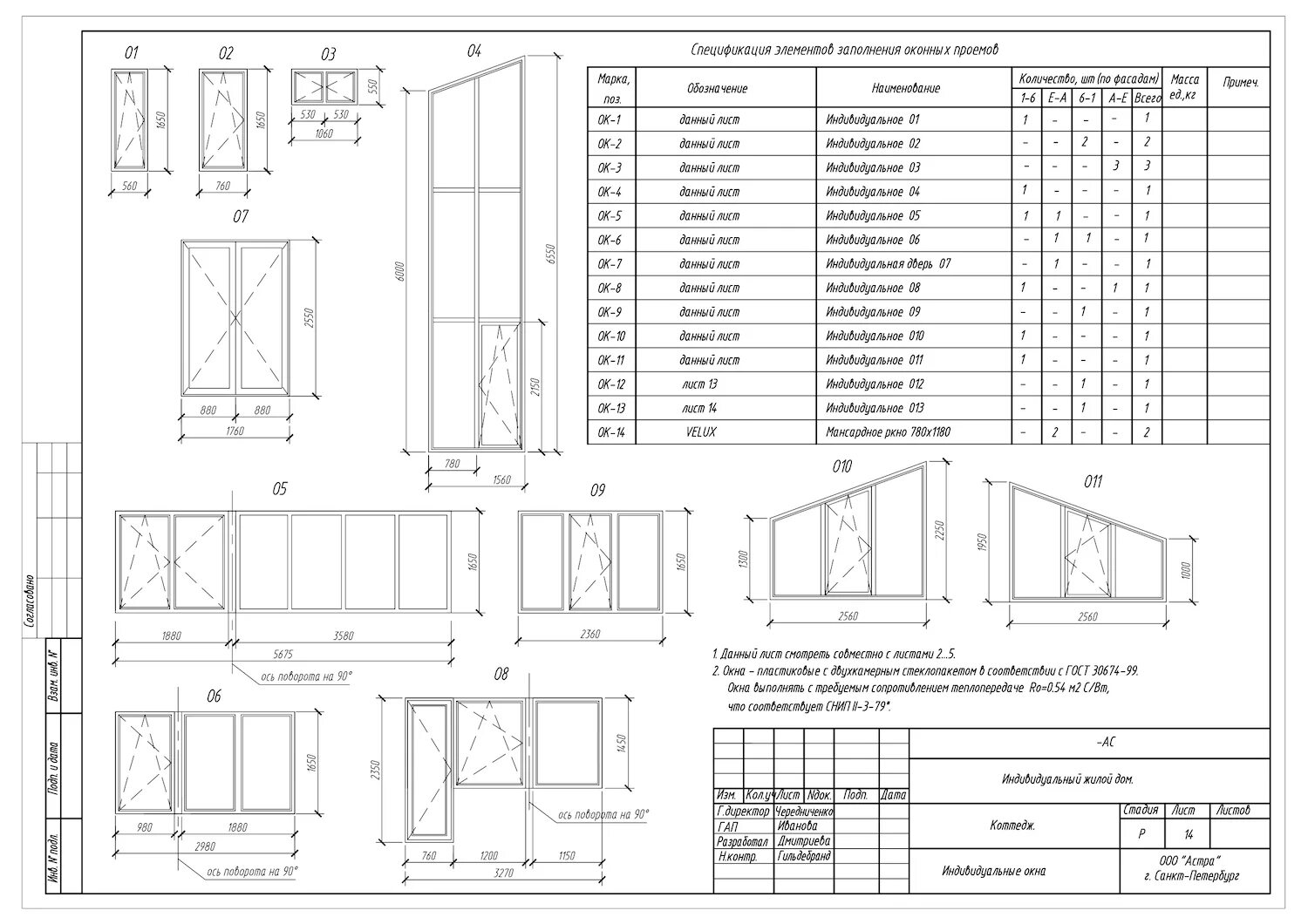
Типы заполнения проемов