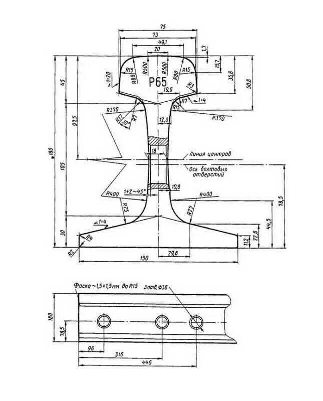
Типы рельсов р65