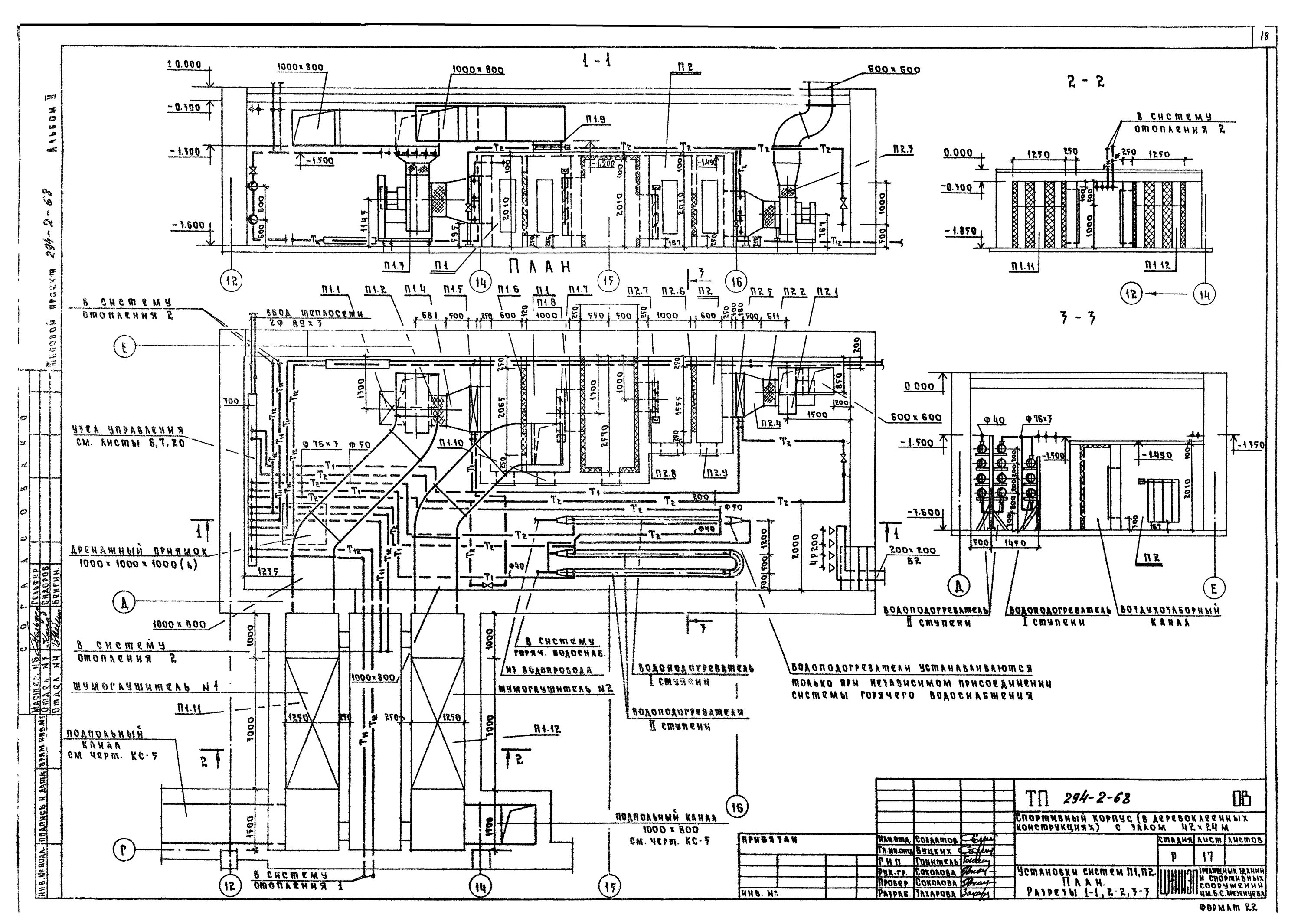
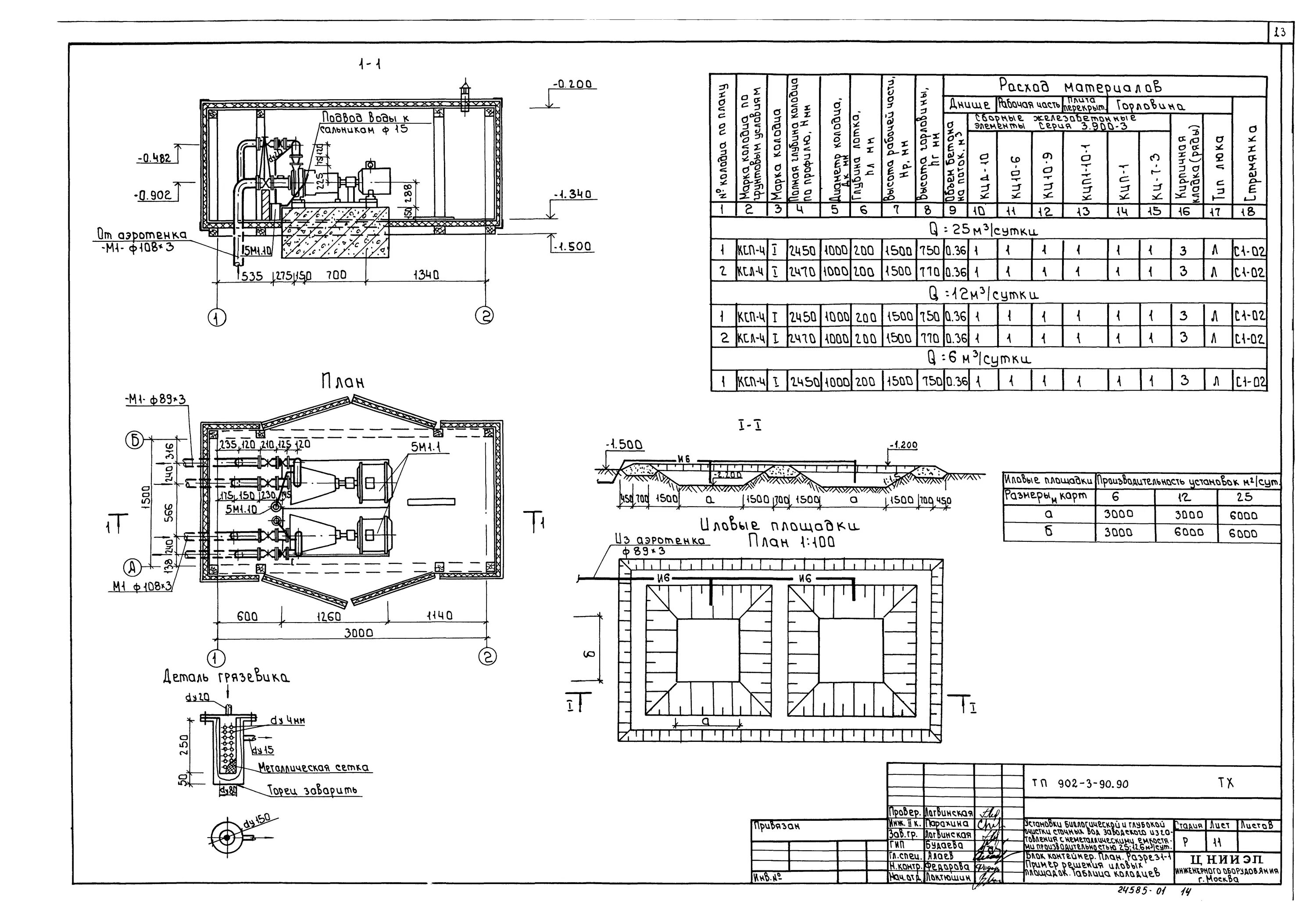
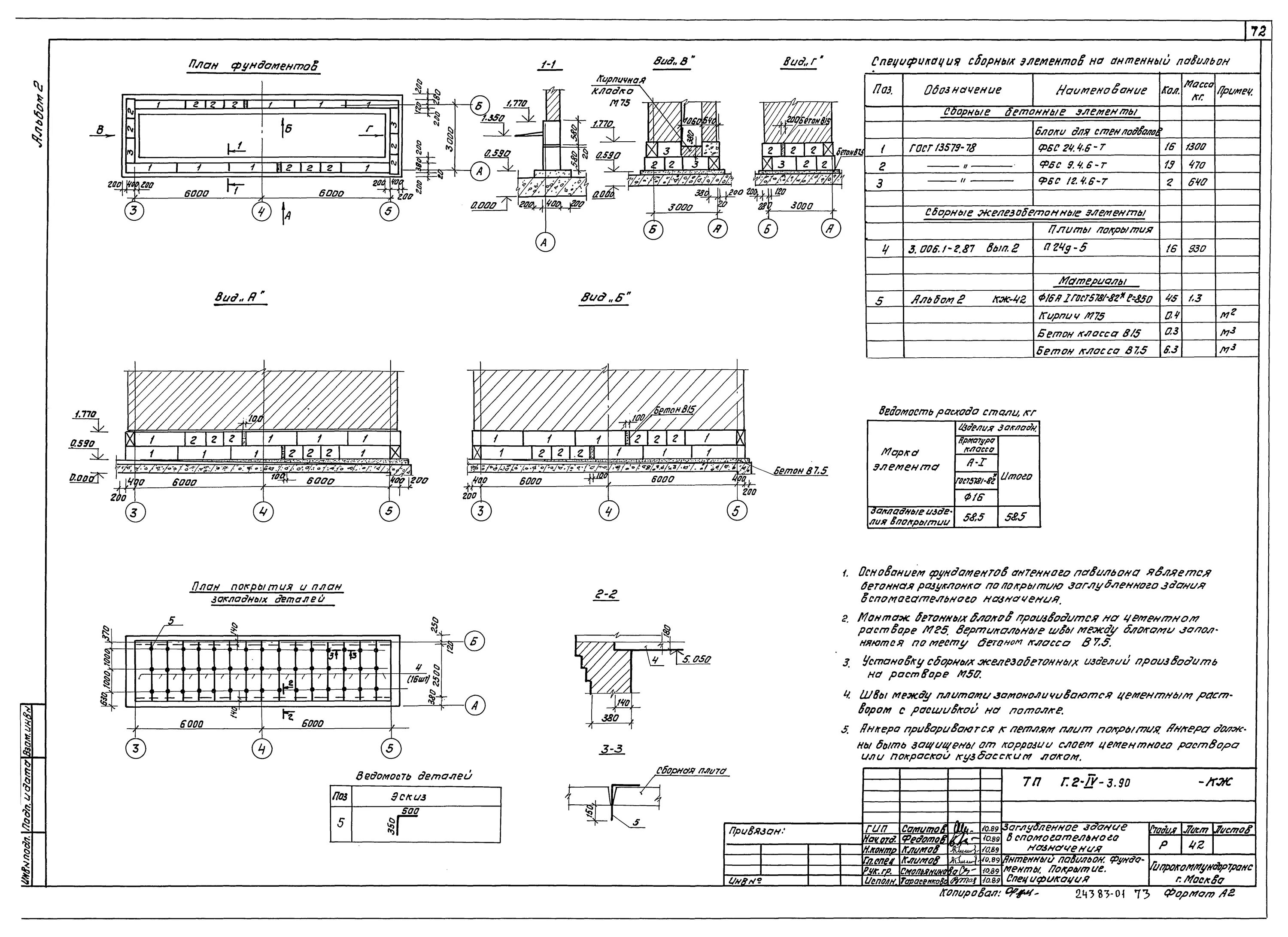
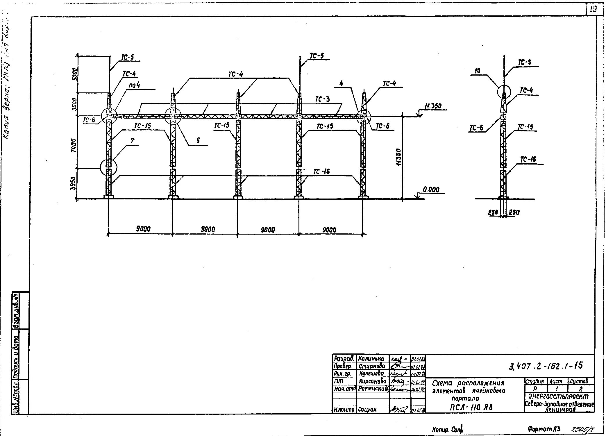
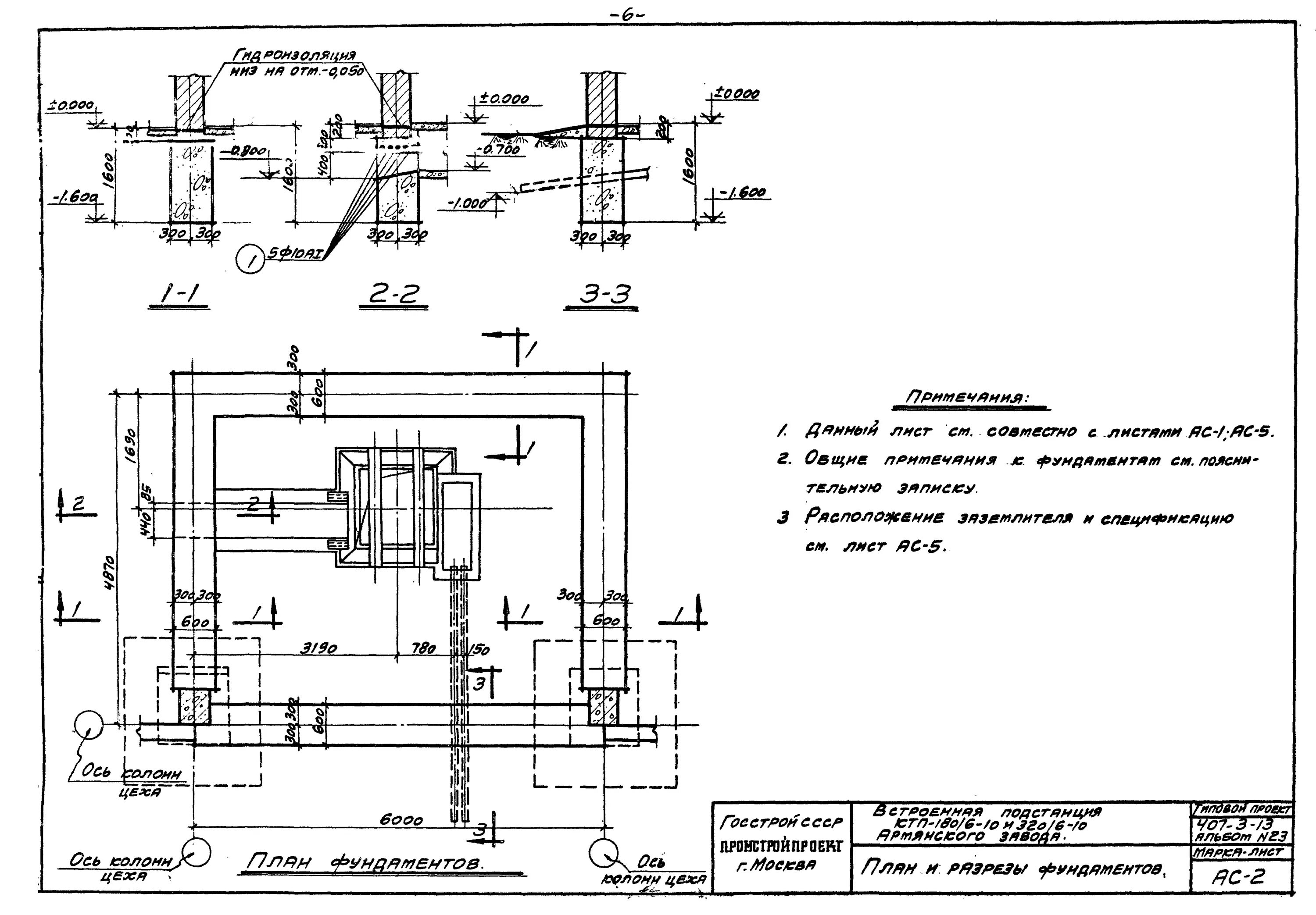
Типовой проект 3 2