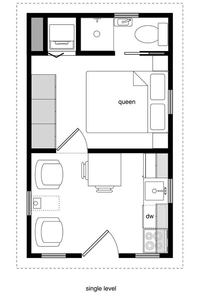
Tiny 24h2