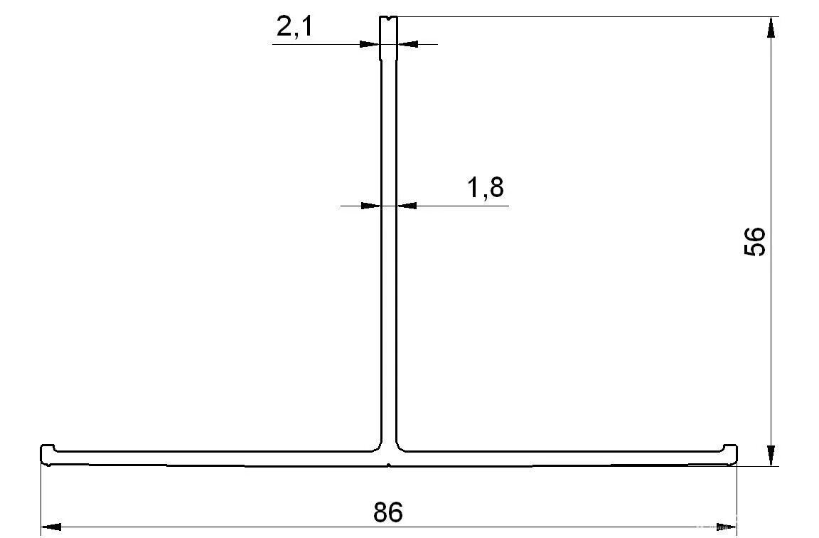
Т профиль для фасадов