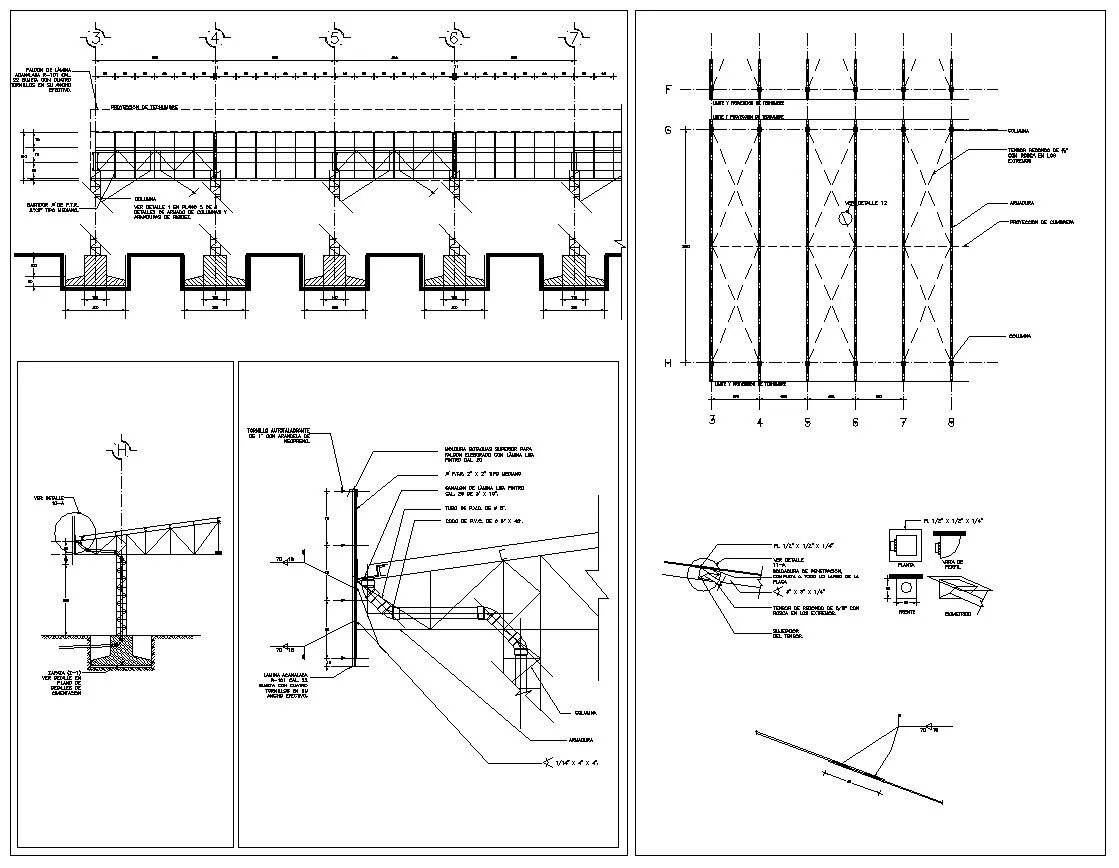
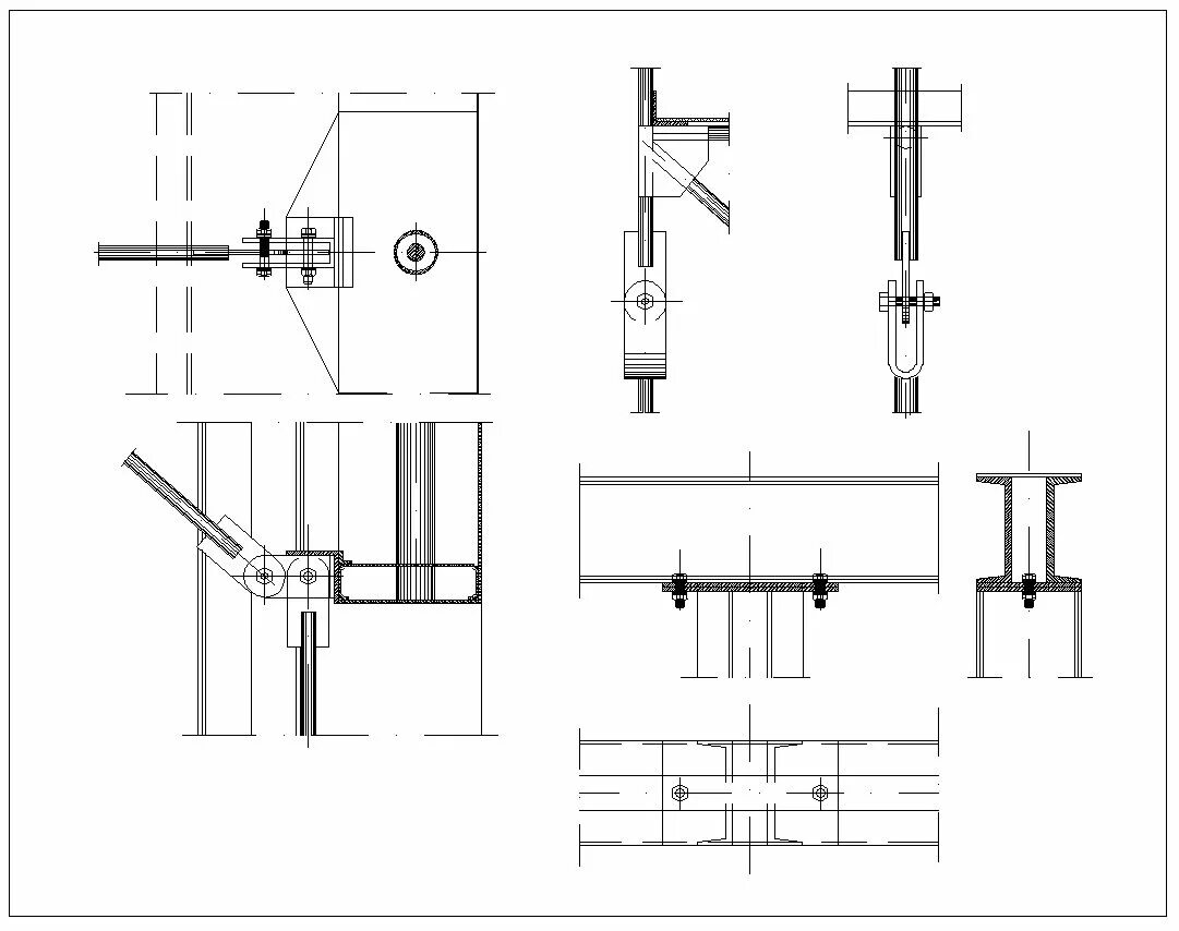
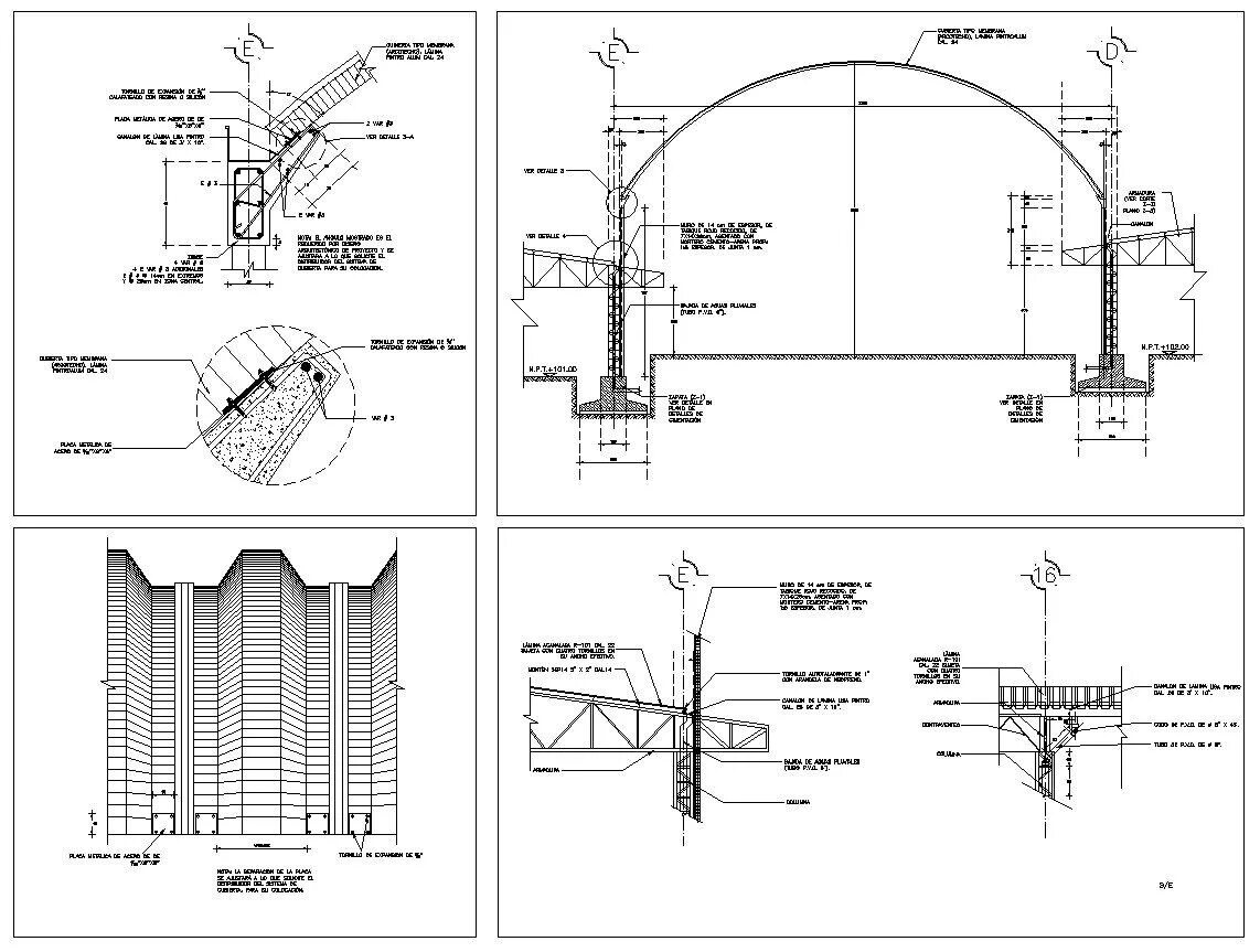
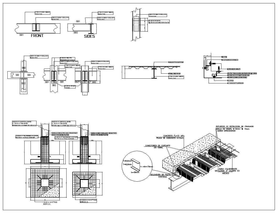
Structure details