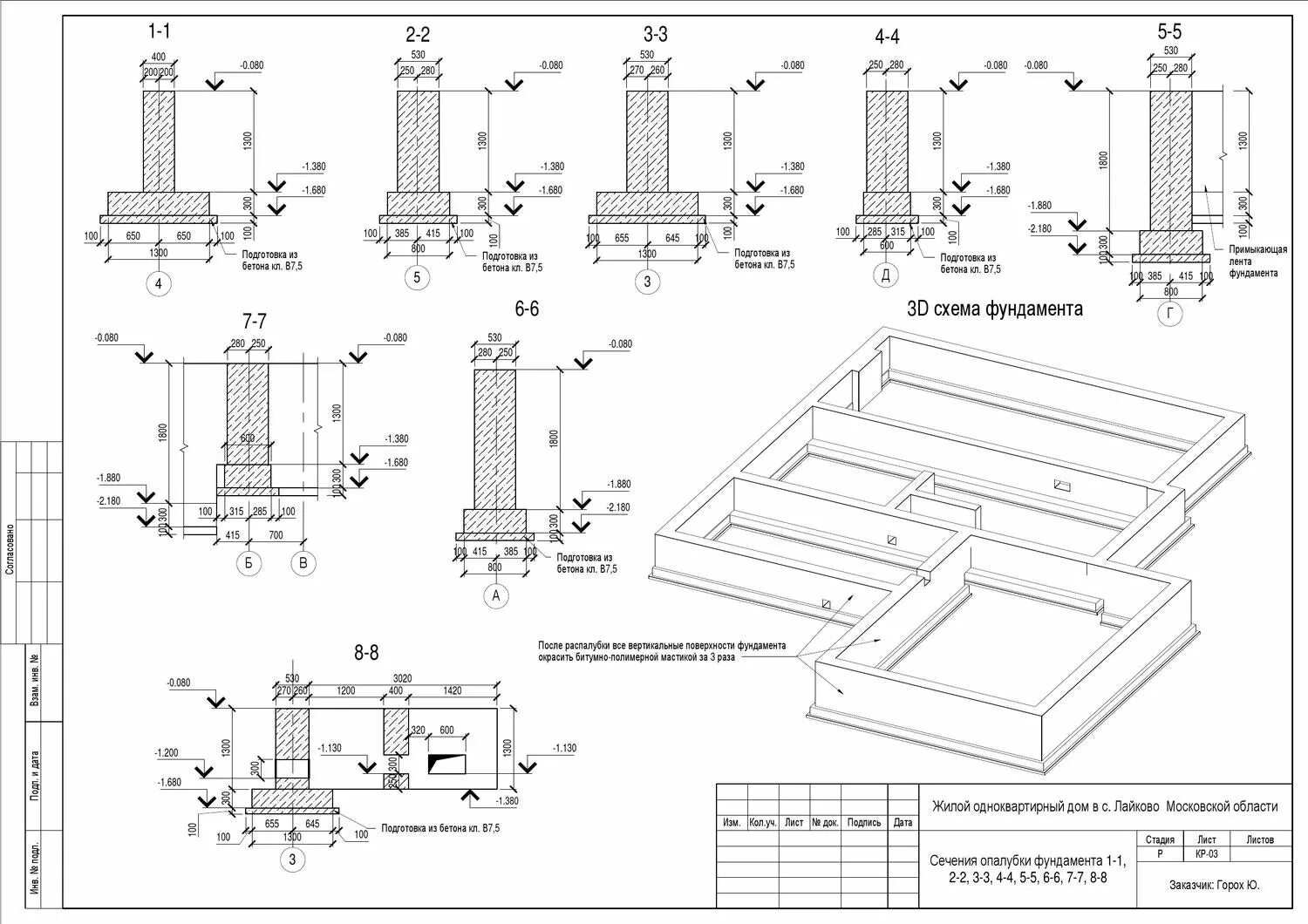
Строение фундамента платформы