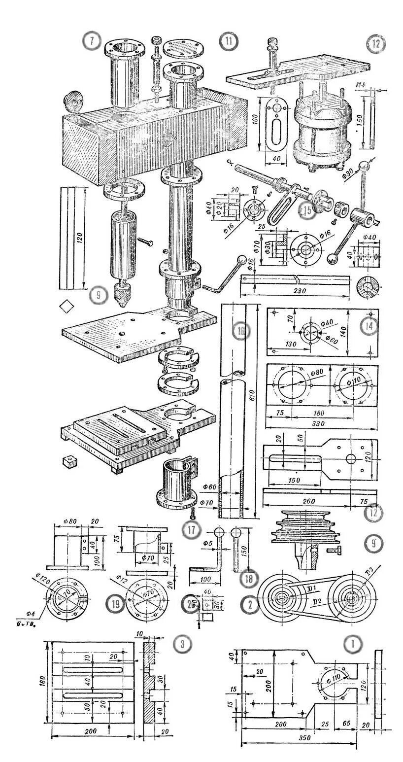
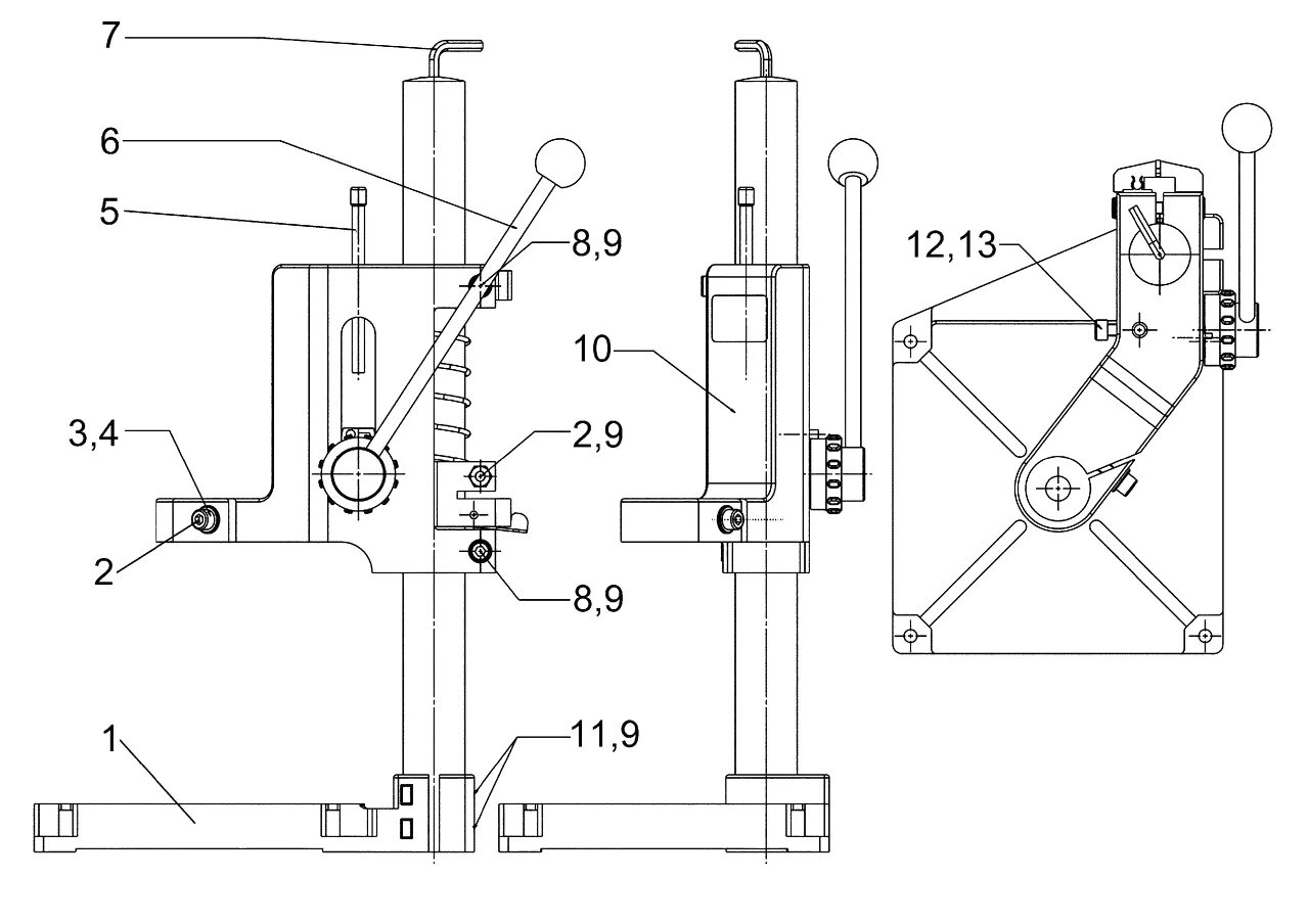
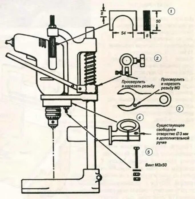
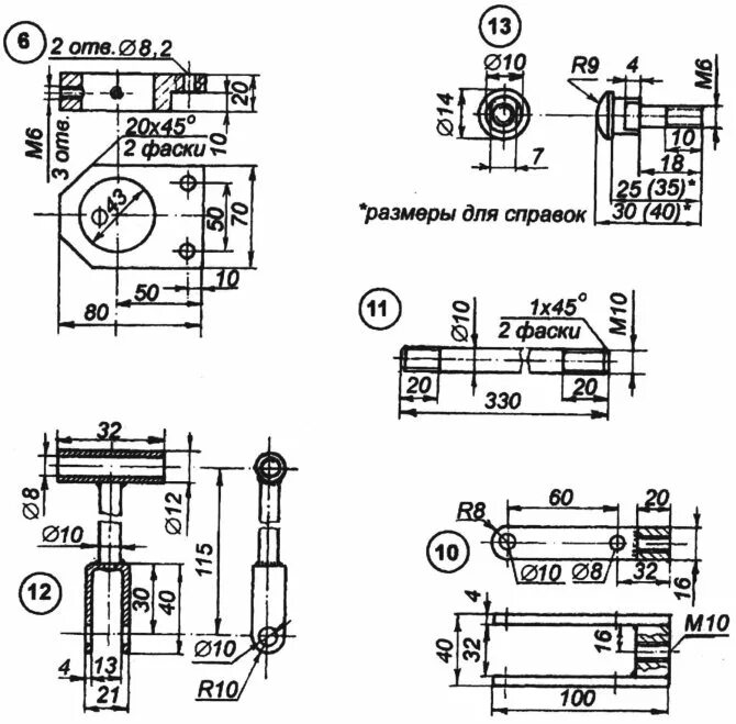
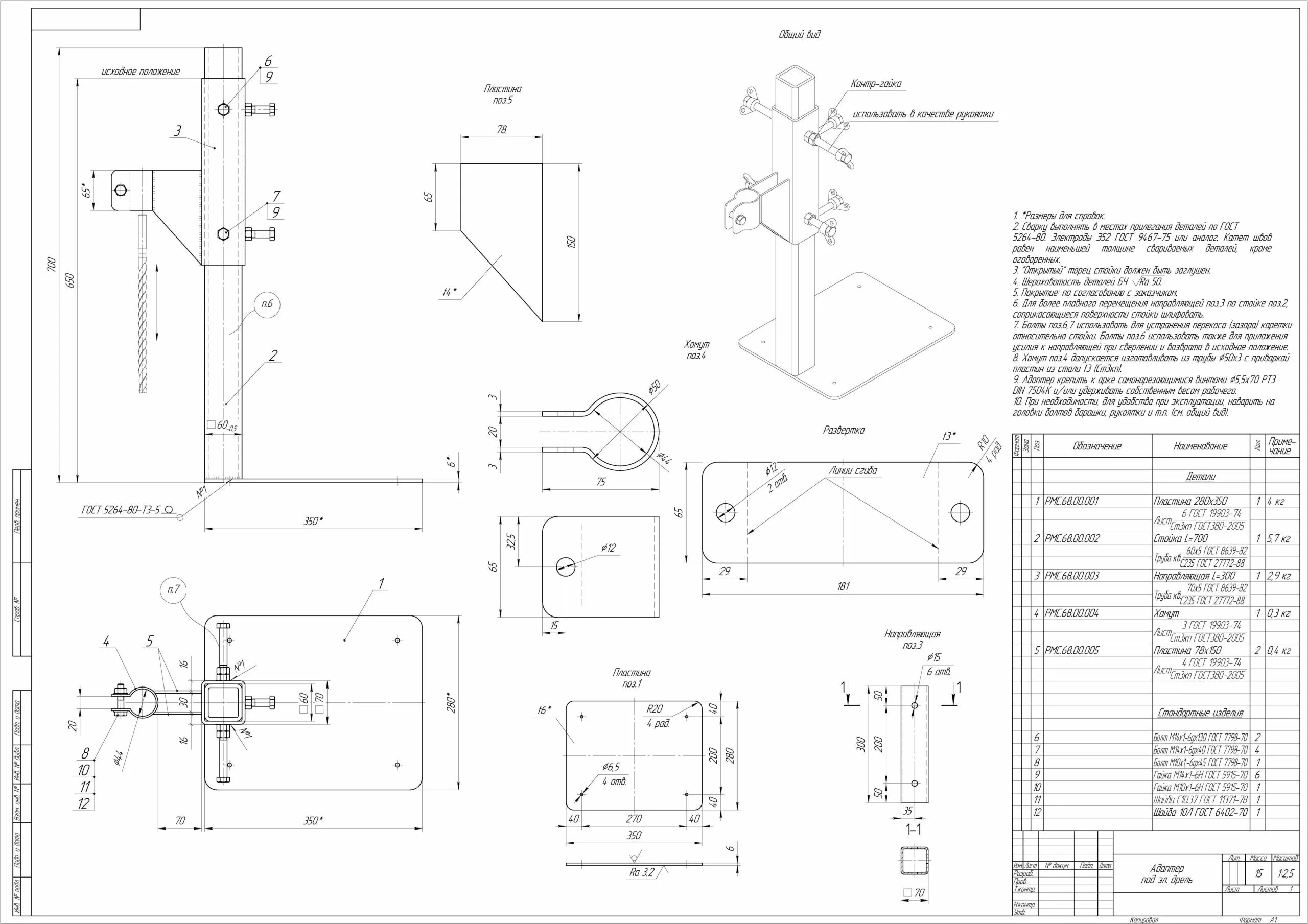
Стойка для дрели своими руками чертежи