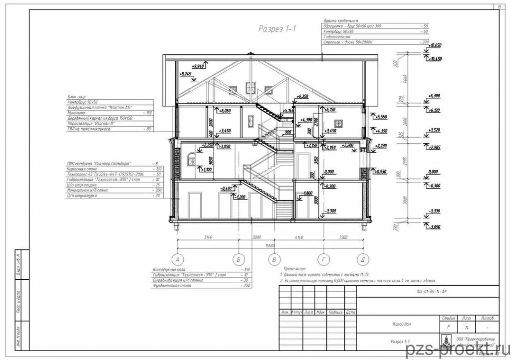
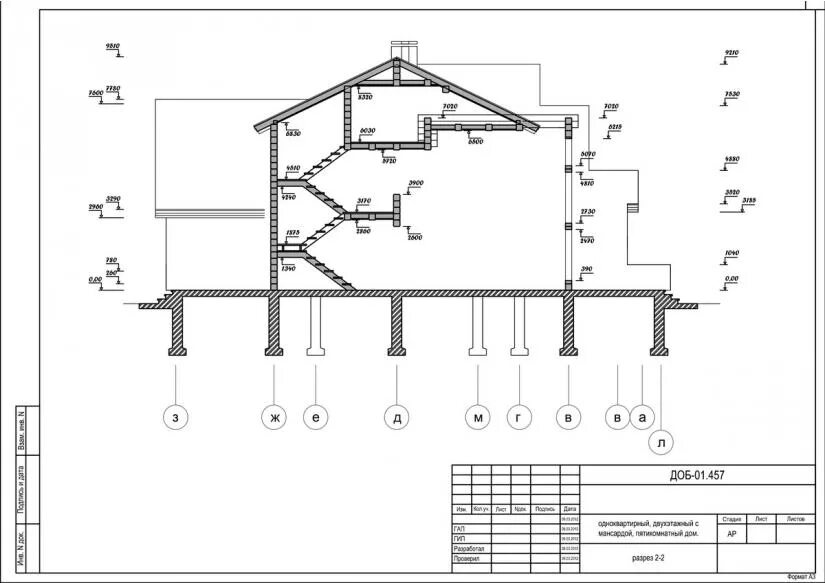
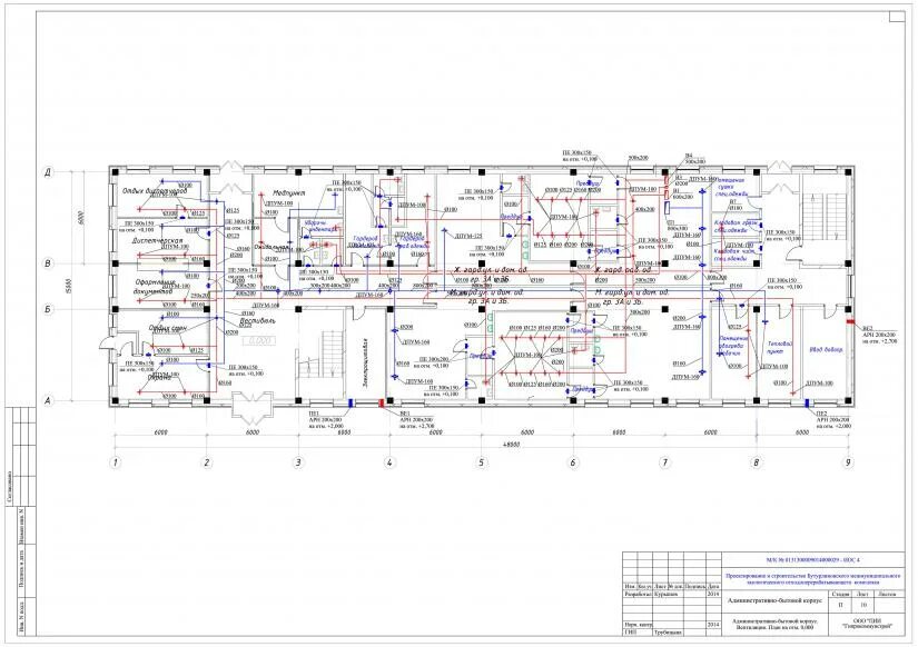
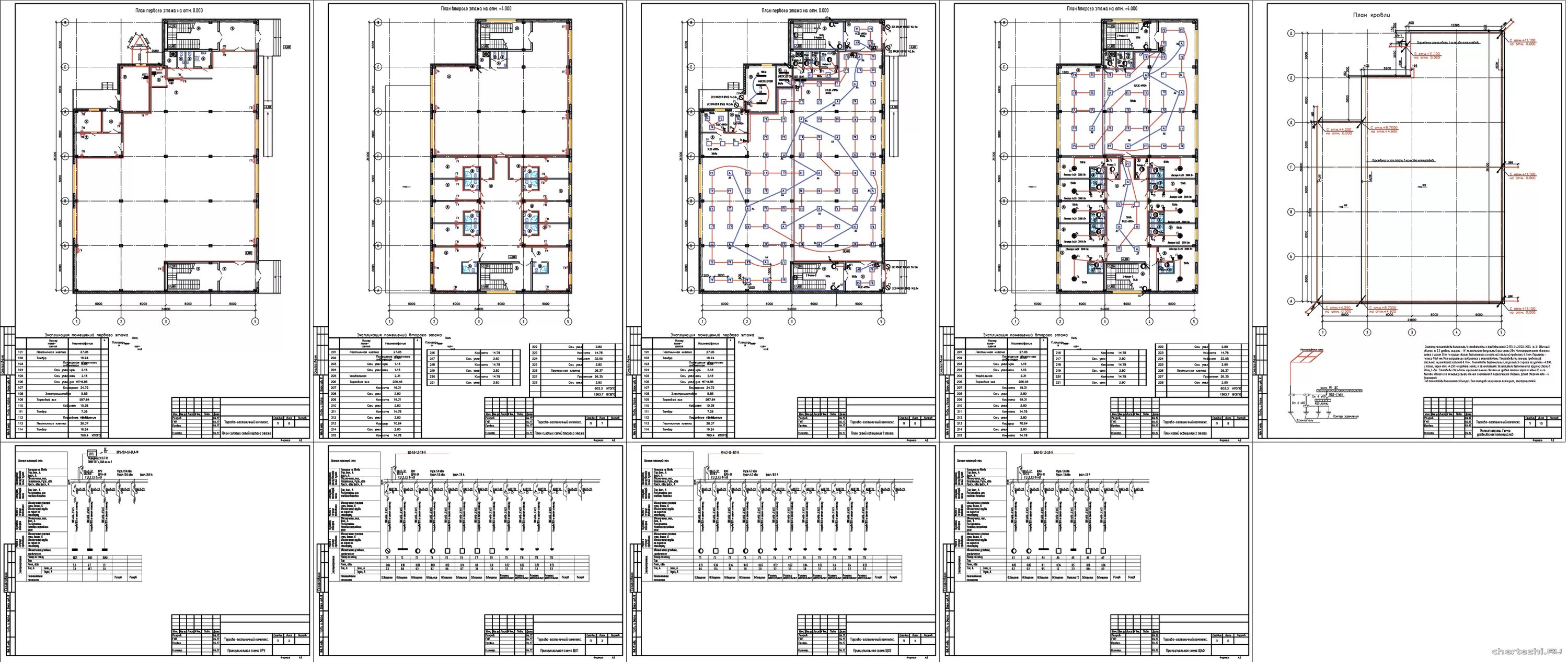
Стадия п и рд