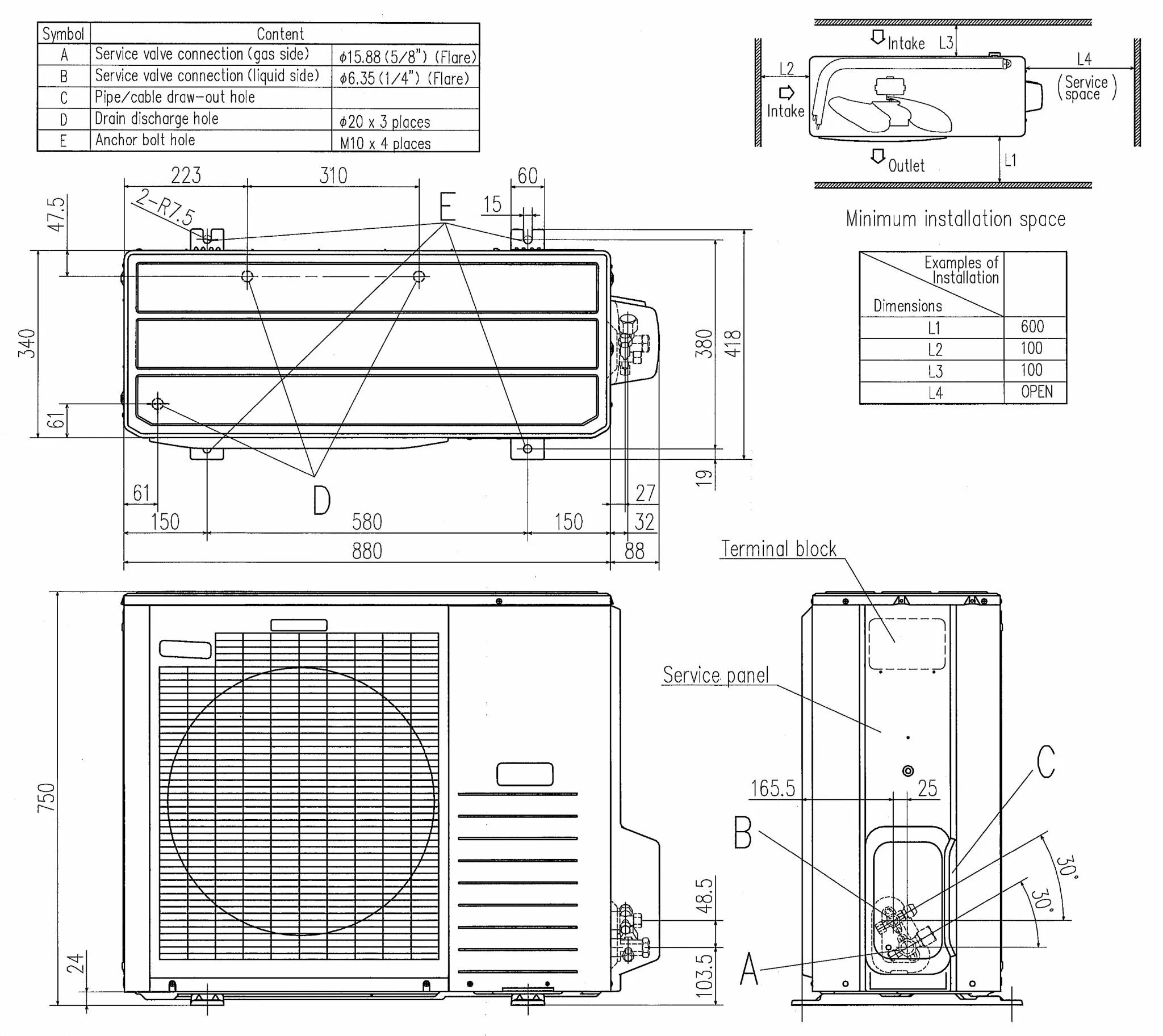
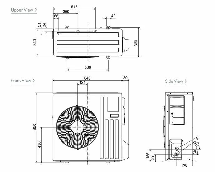
Сплит система размеры