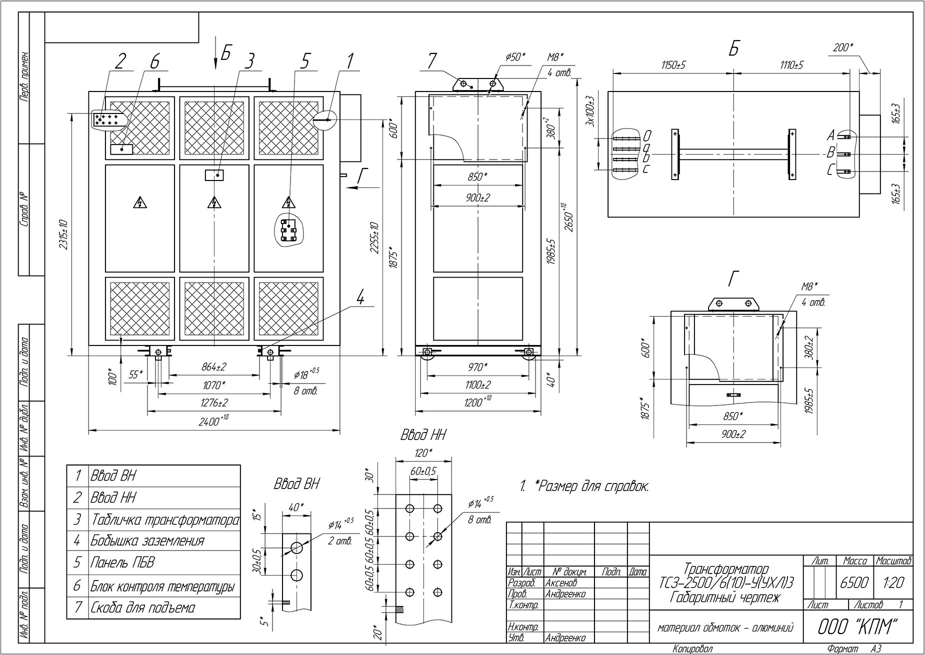
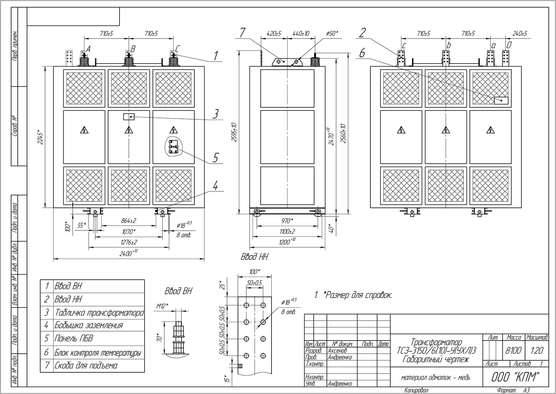
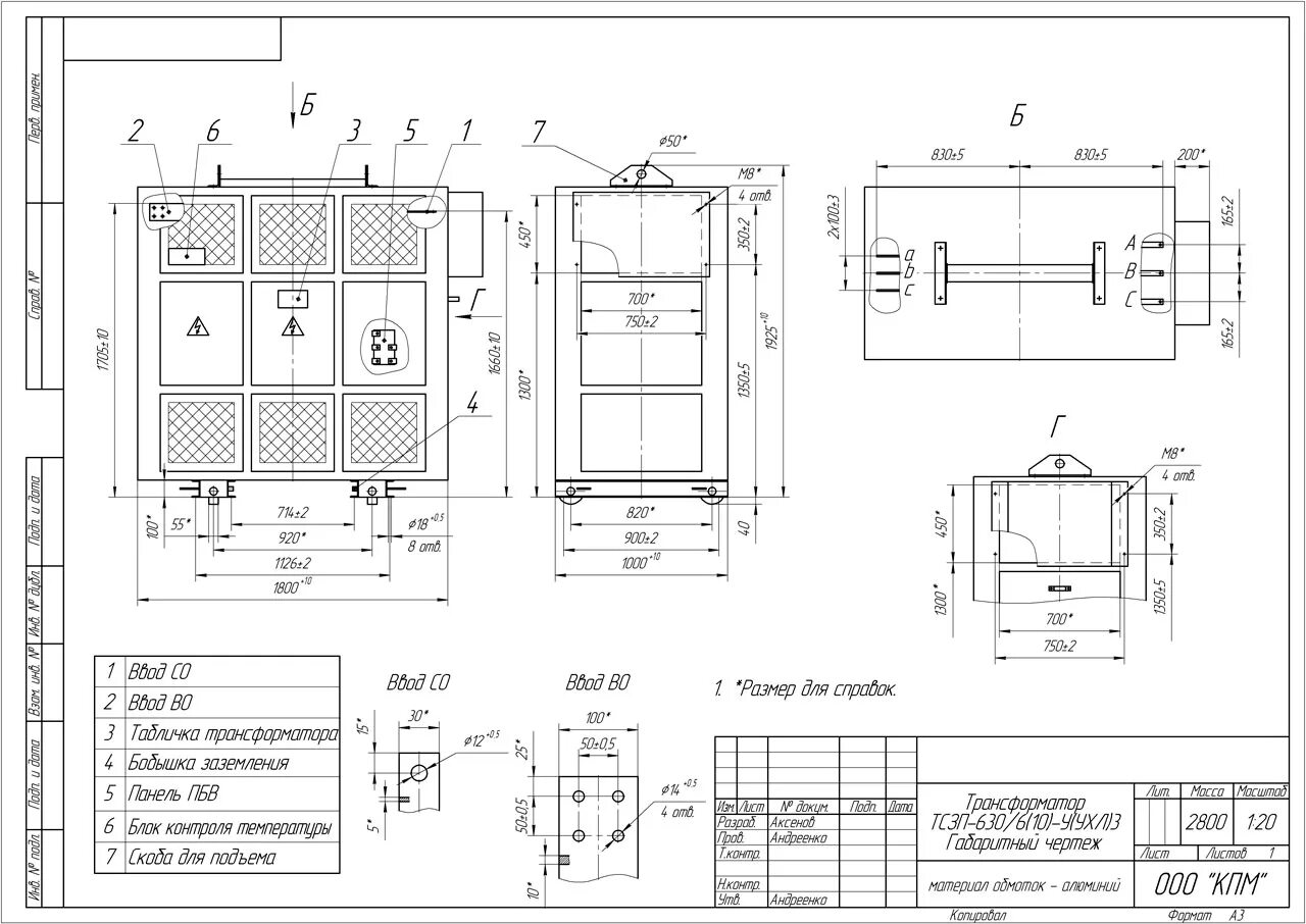
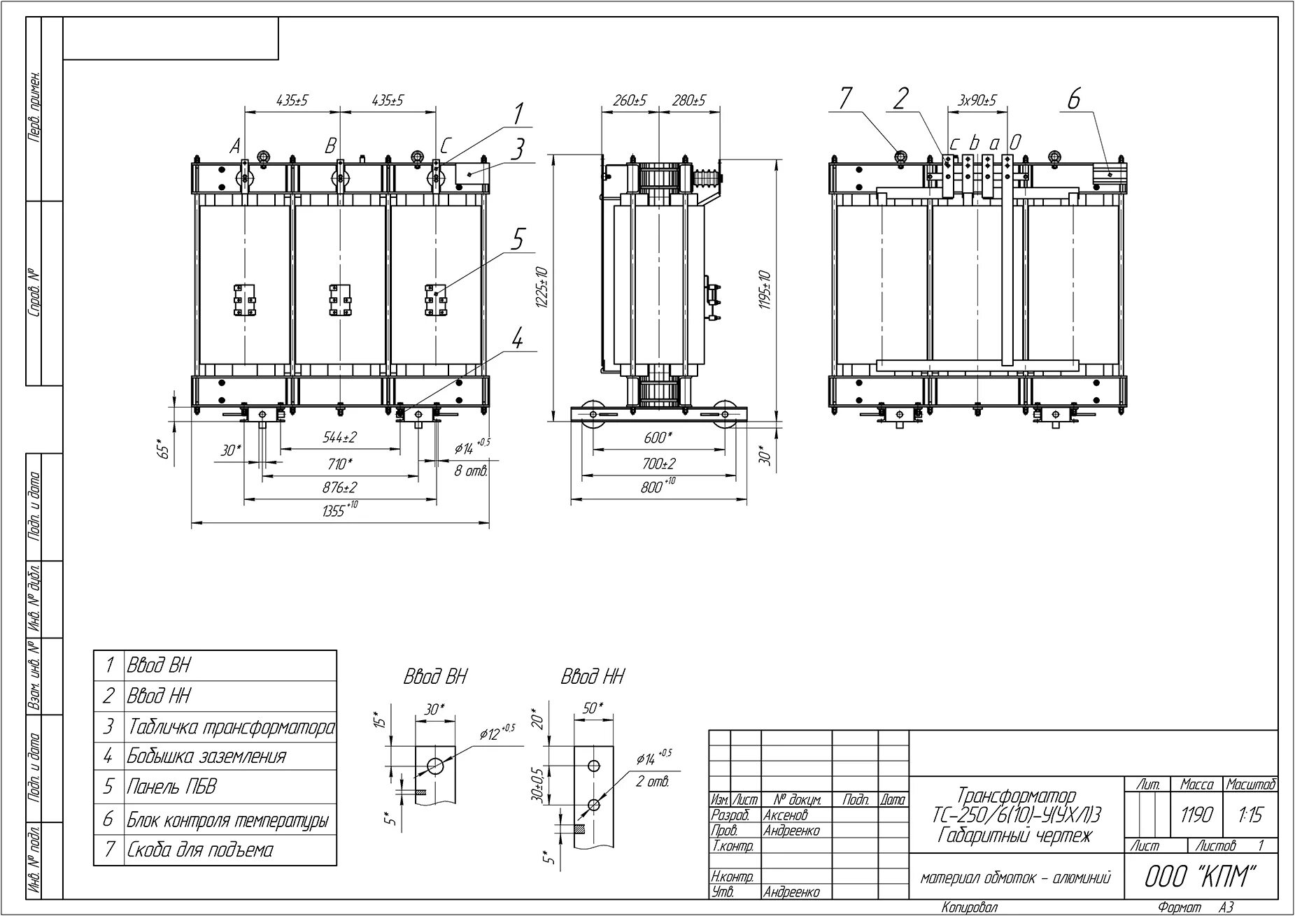
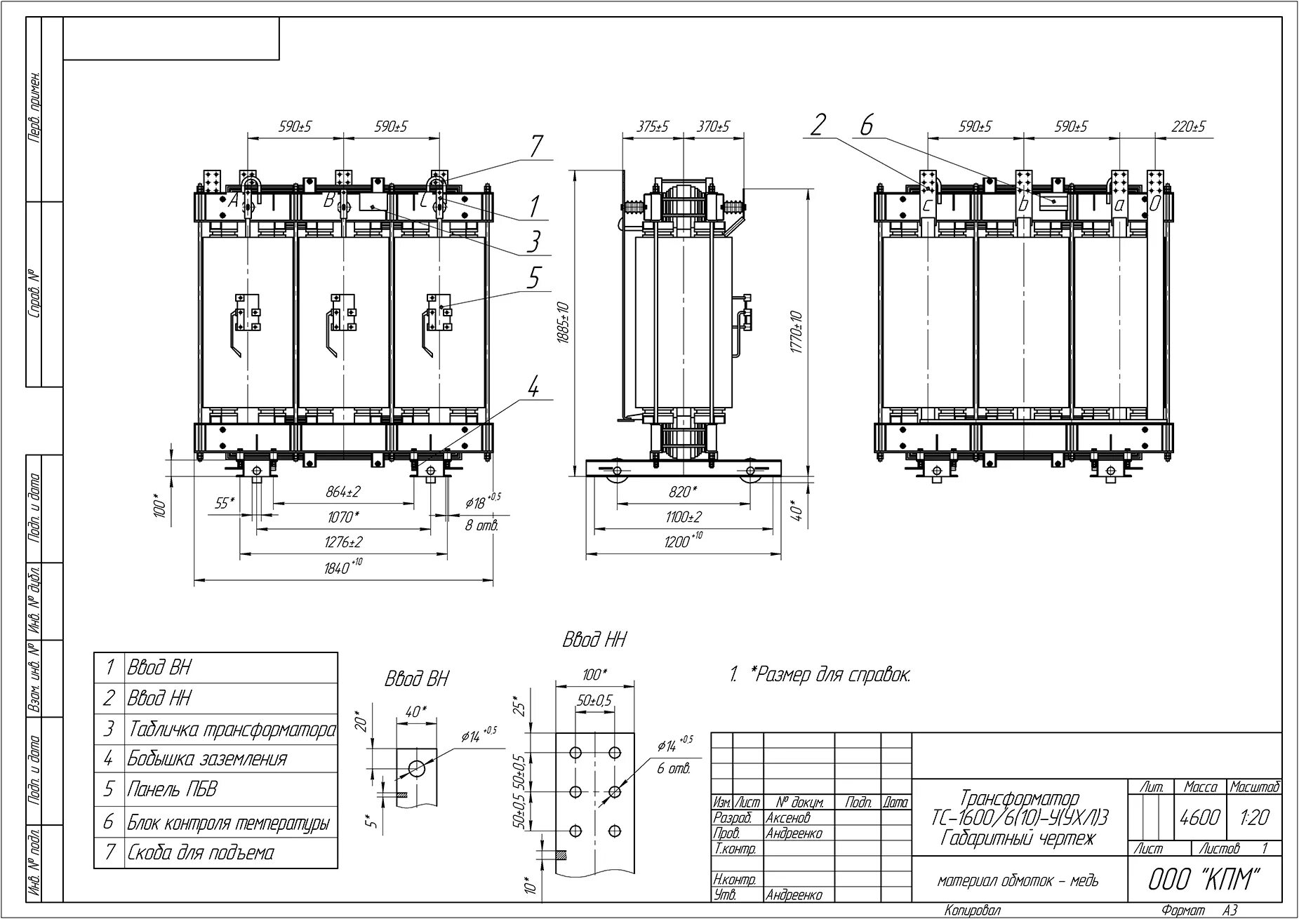
Спецификация трансформатора