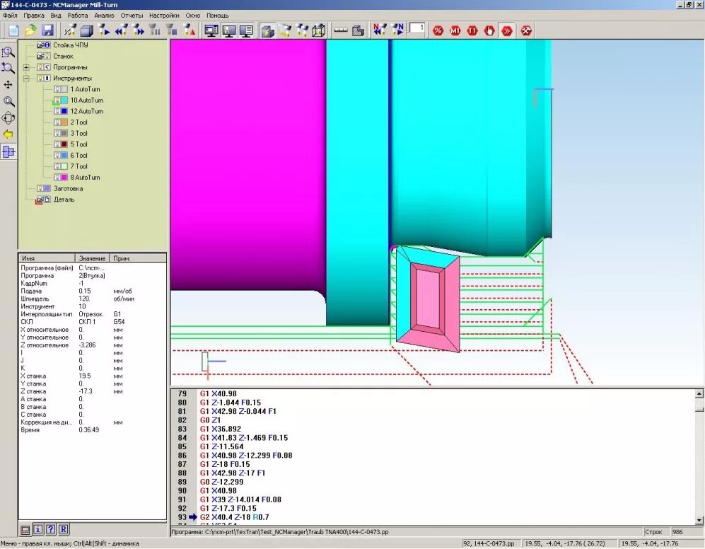
Составление управляющей программы