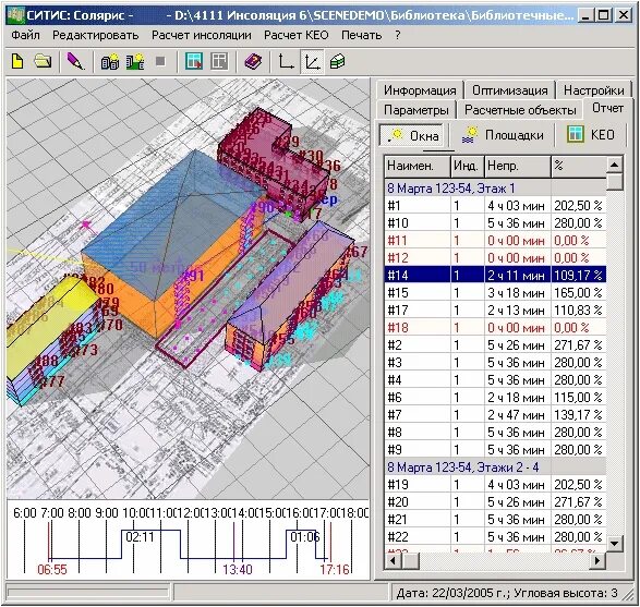
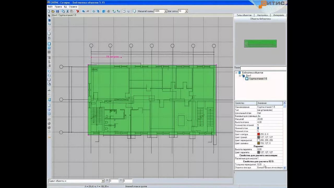
Солярис инсоляция