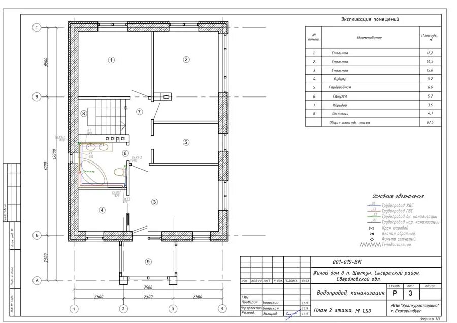
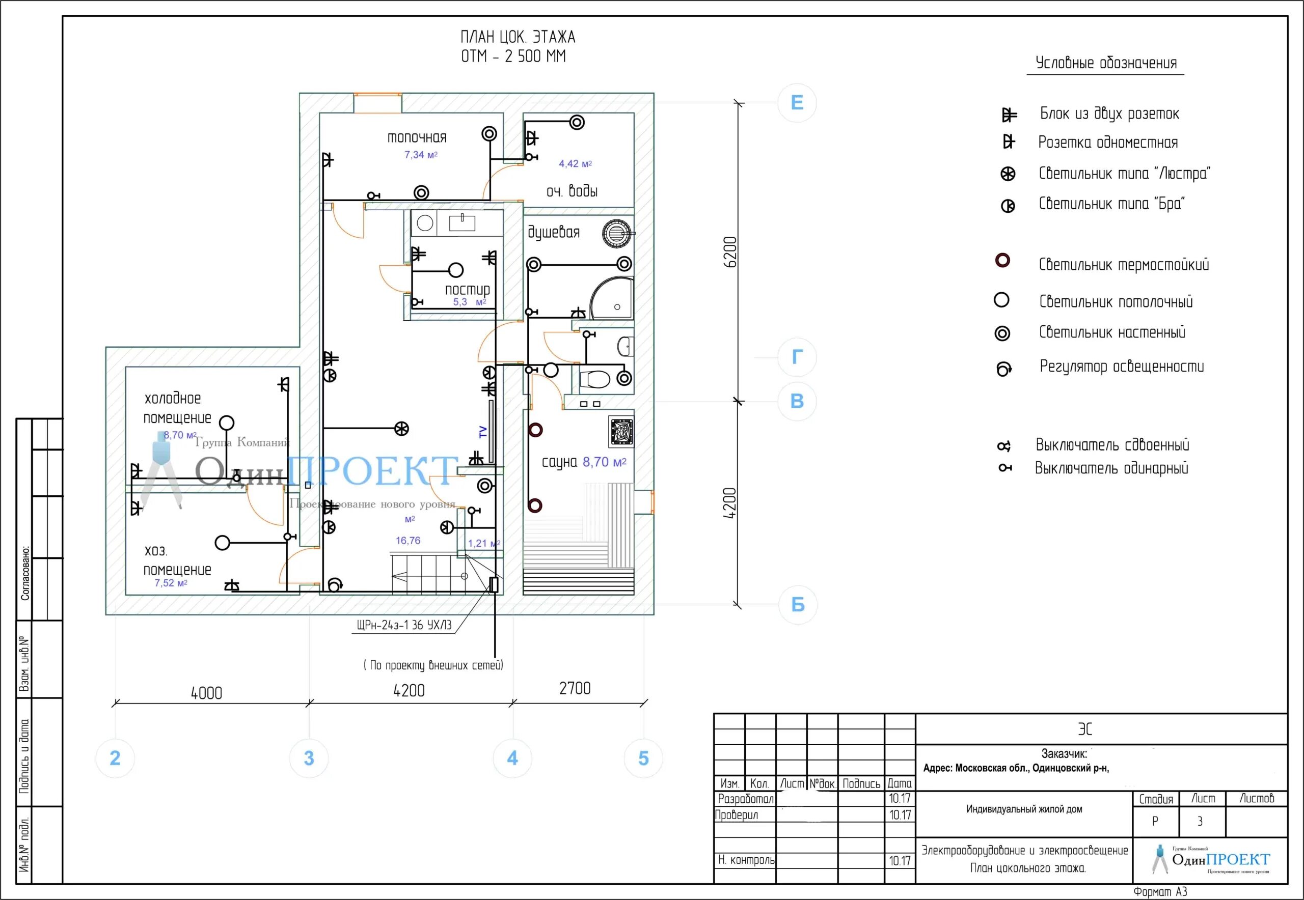
Содержание проекта дома