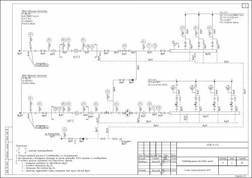
Снип итп