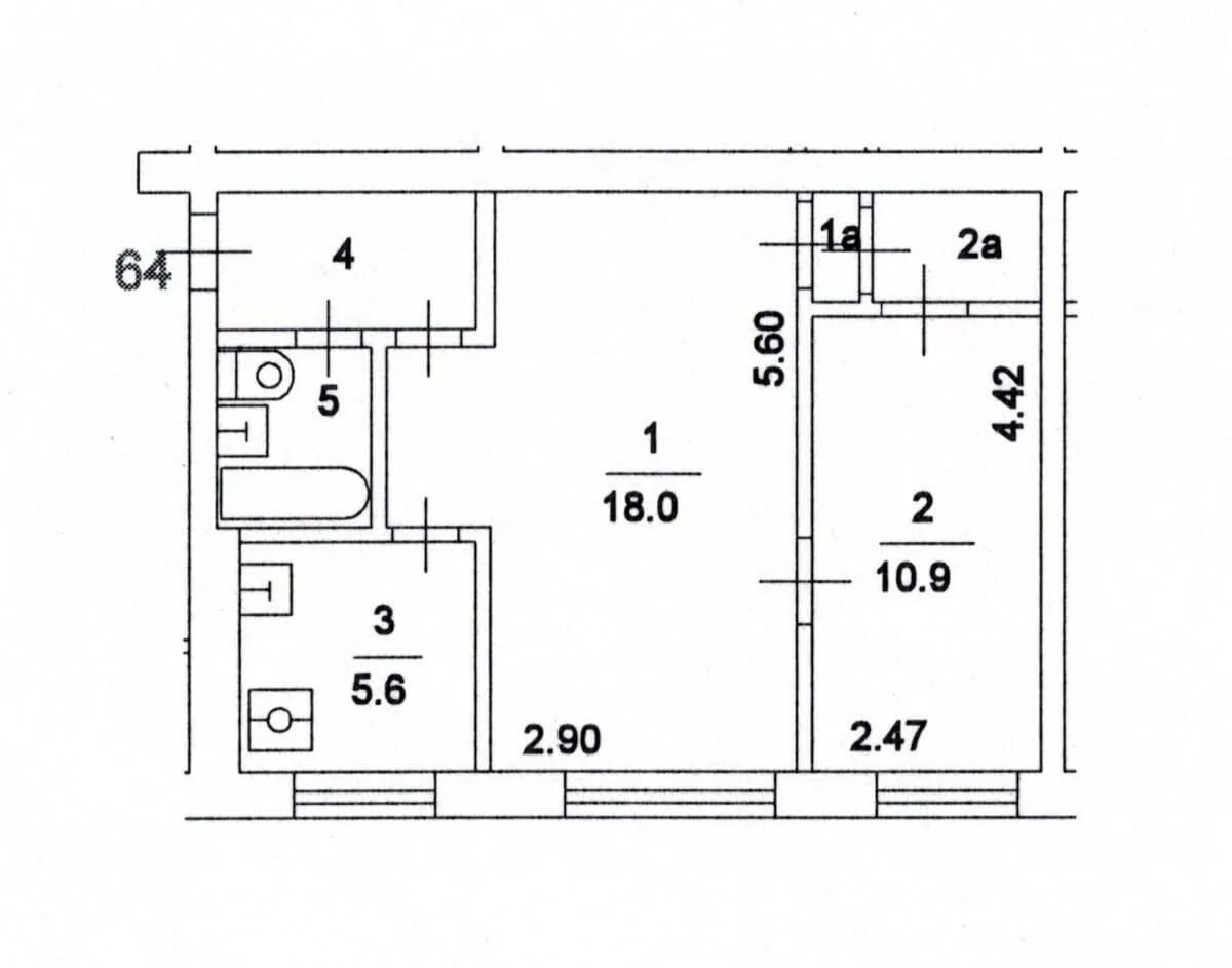
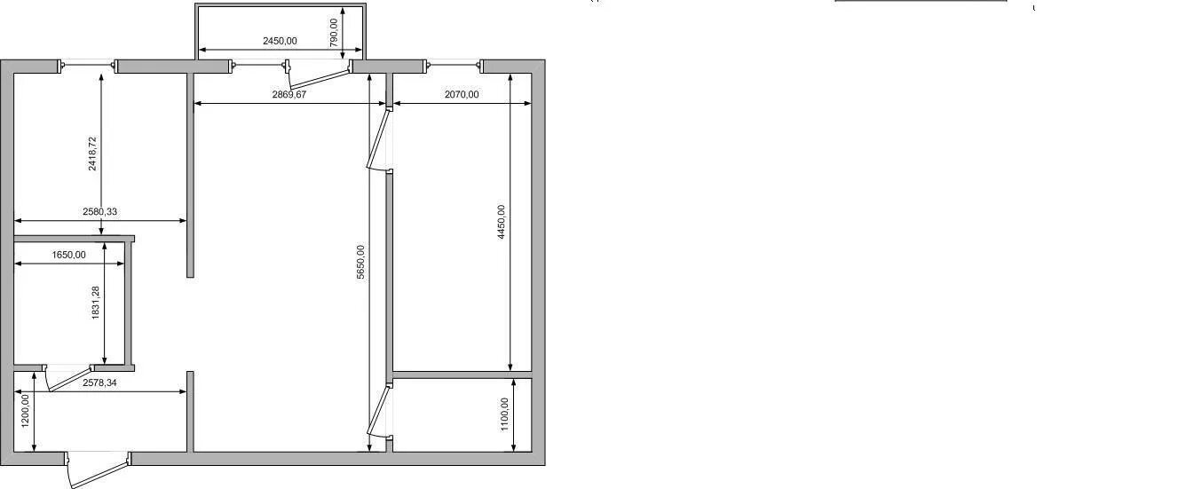
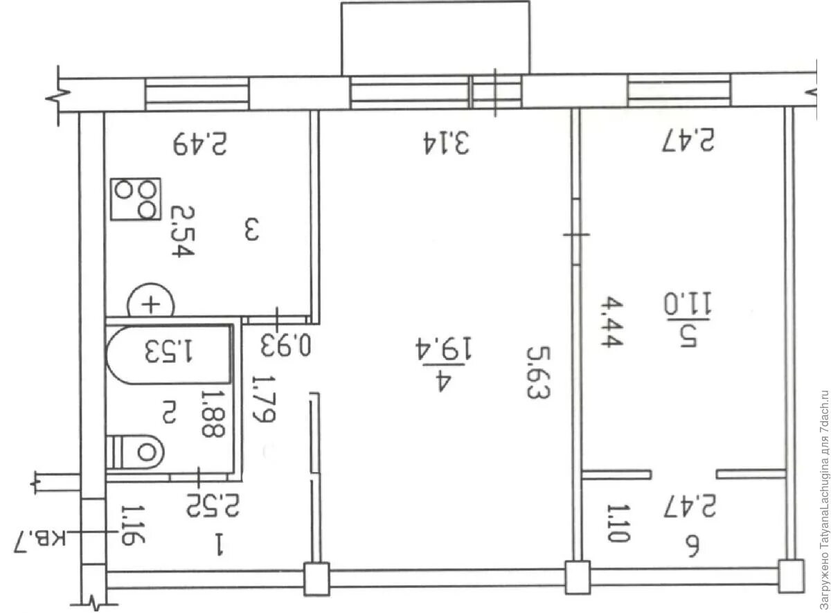
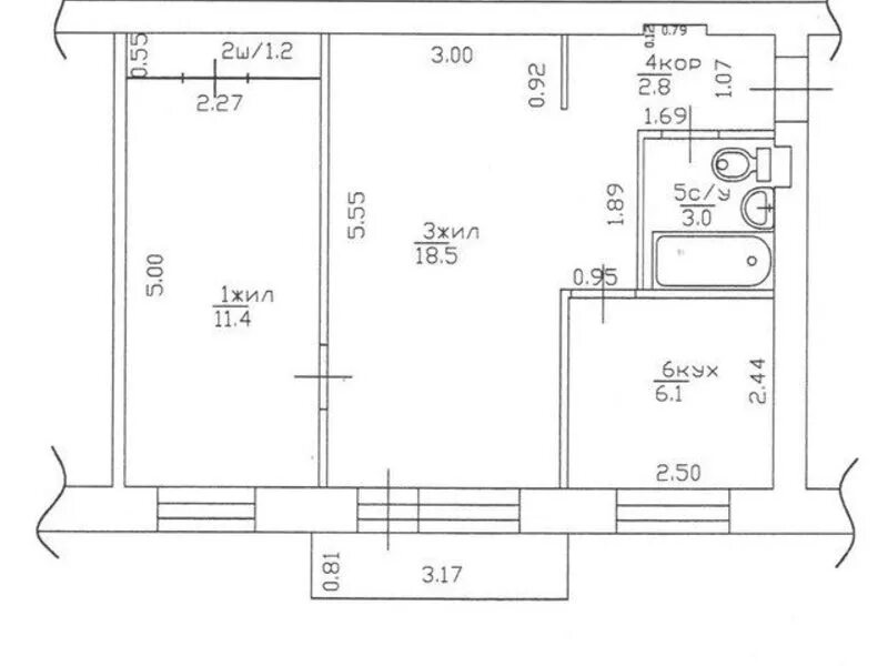
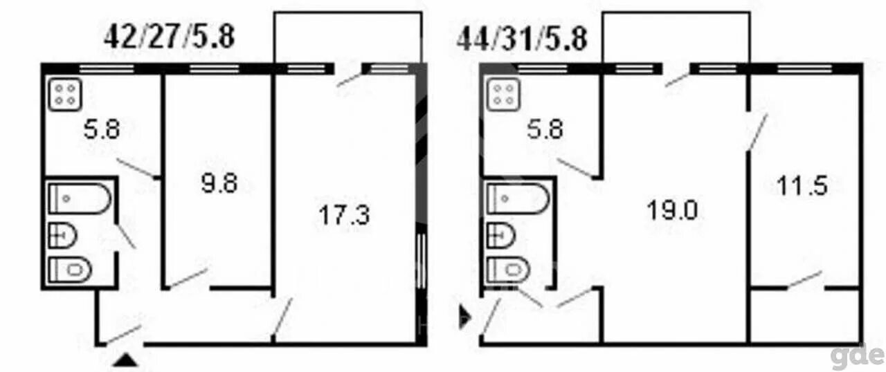
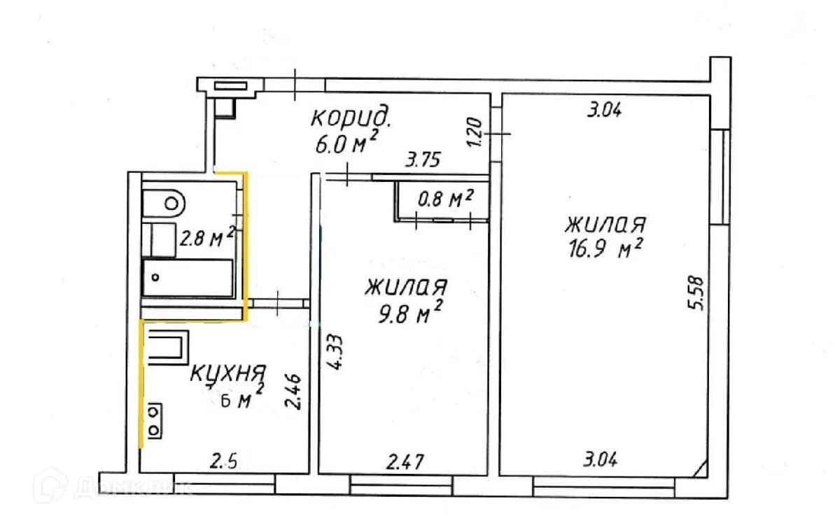
Сколько метров комнаты в хрущевках