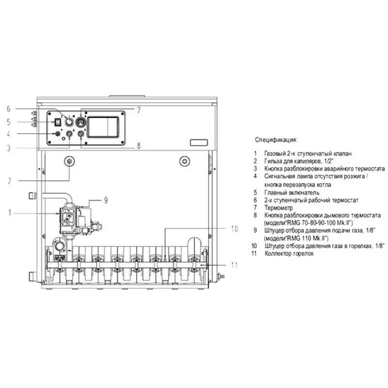
Sime rmg mk ii