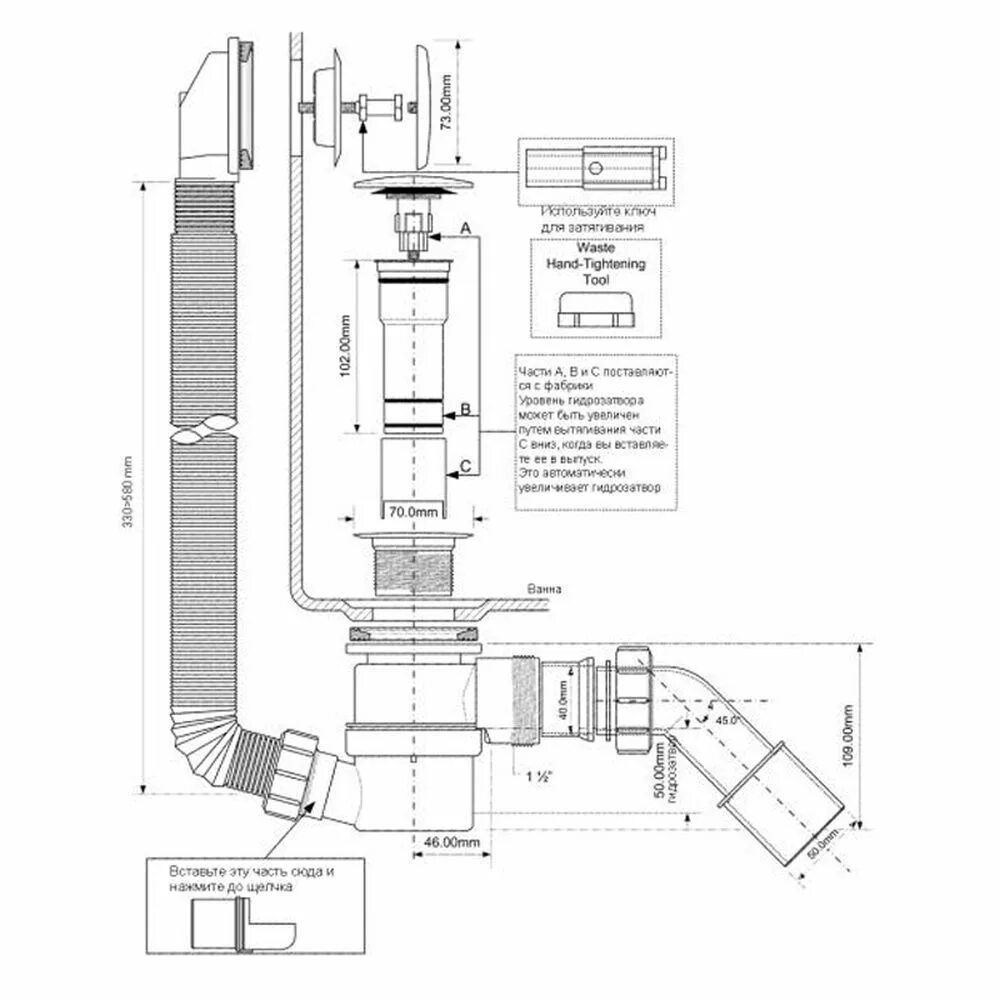
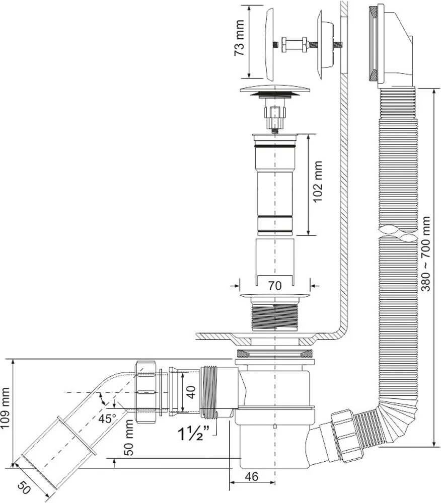
Сифон для ванны mcalpine mrb11