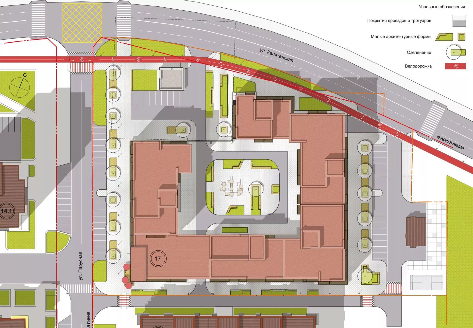
Ширина проезда к зданию