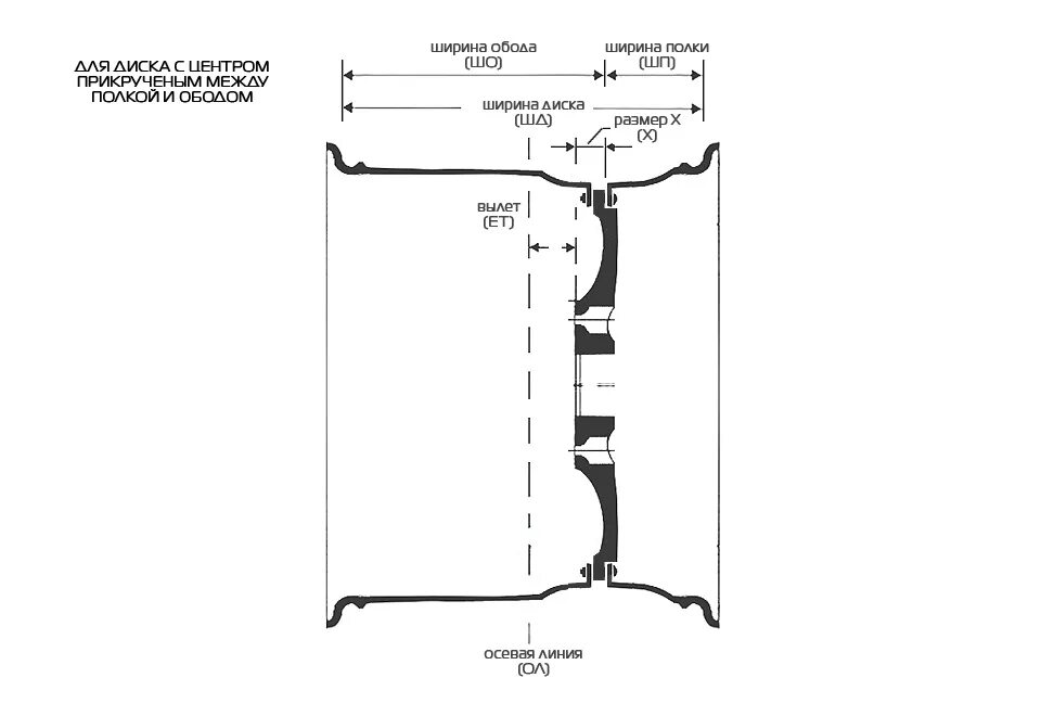
Ширина обода и вылет диска