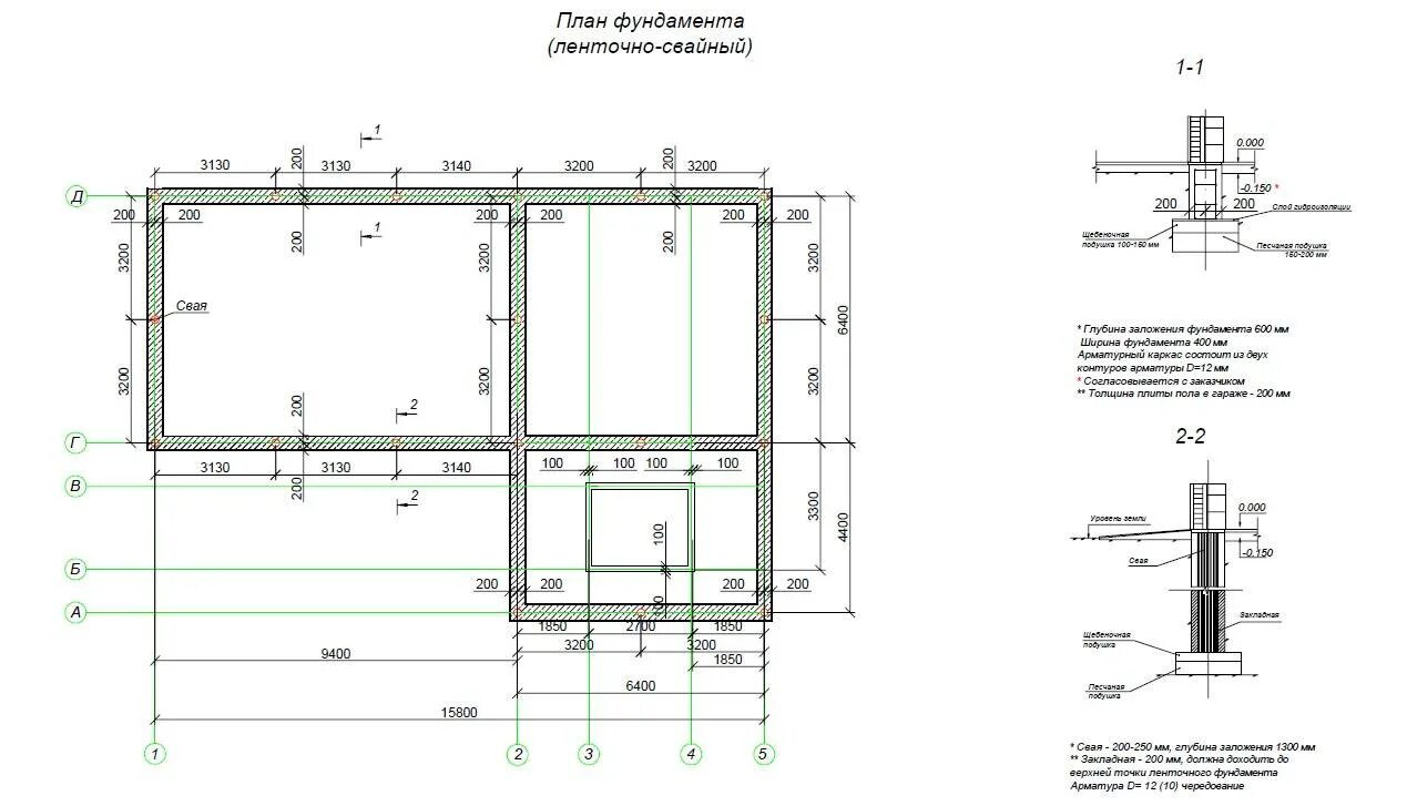
Ширина фундамента для дома из кирпича