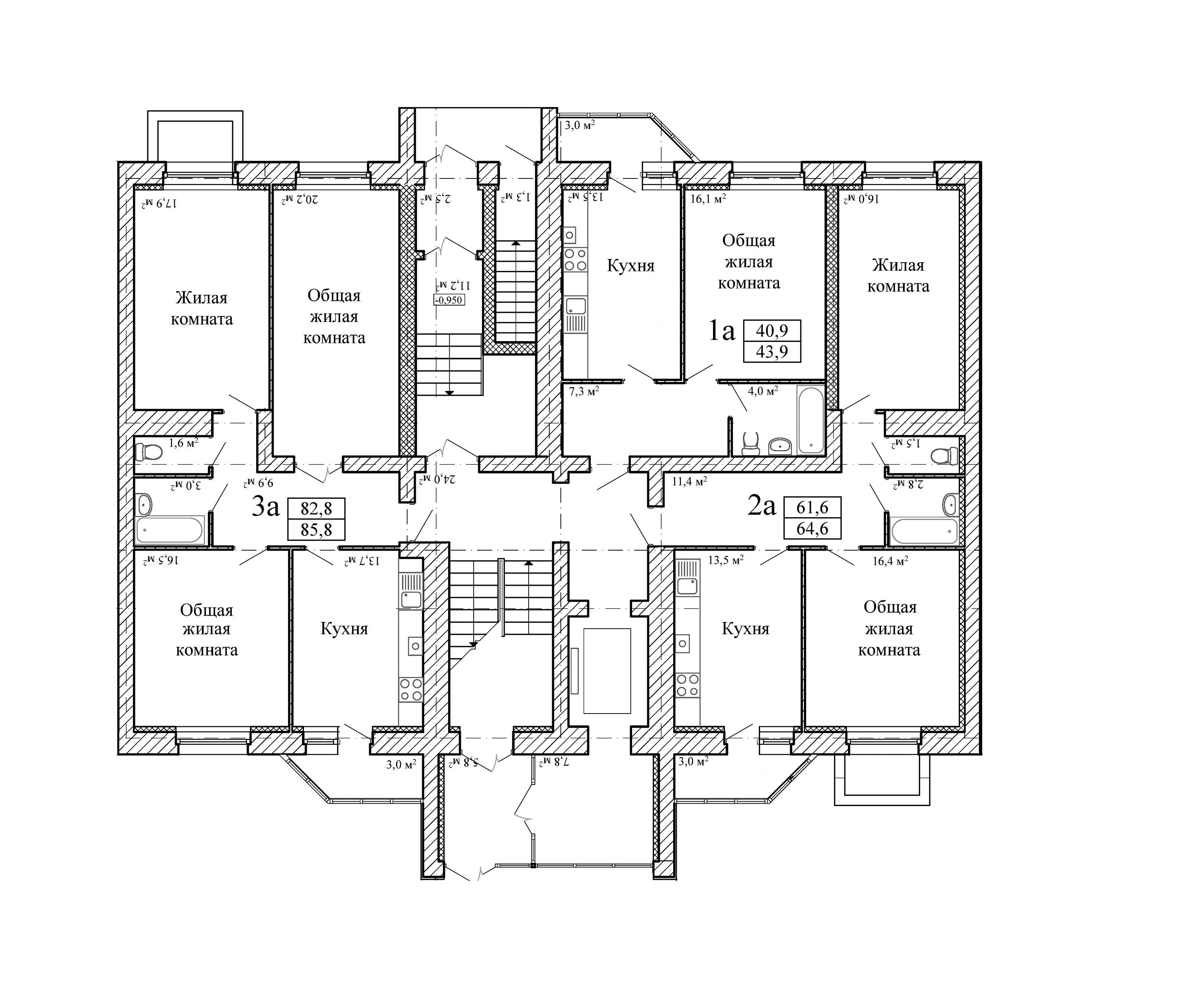
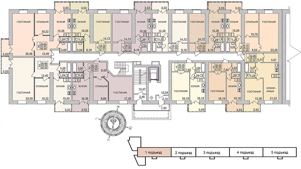
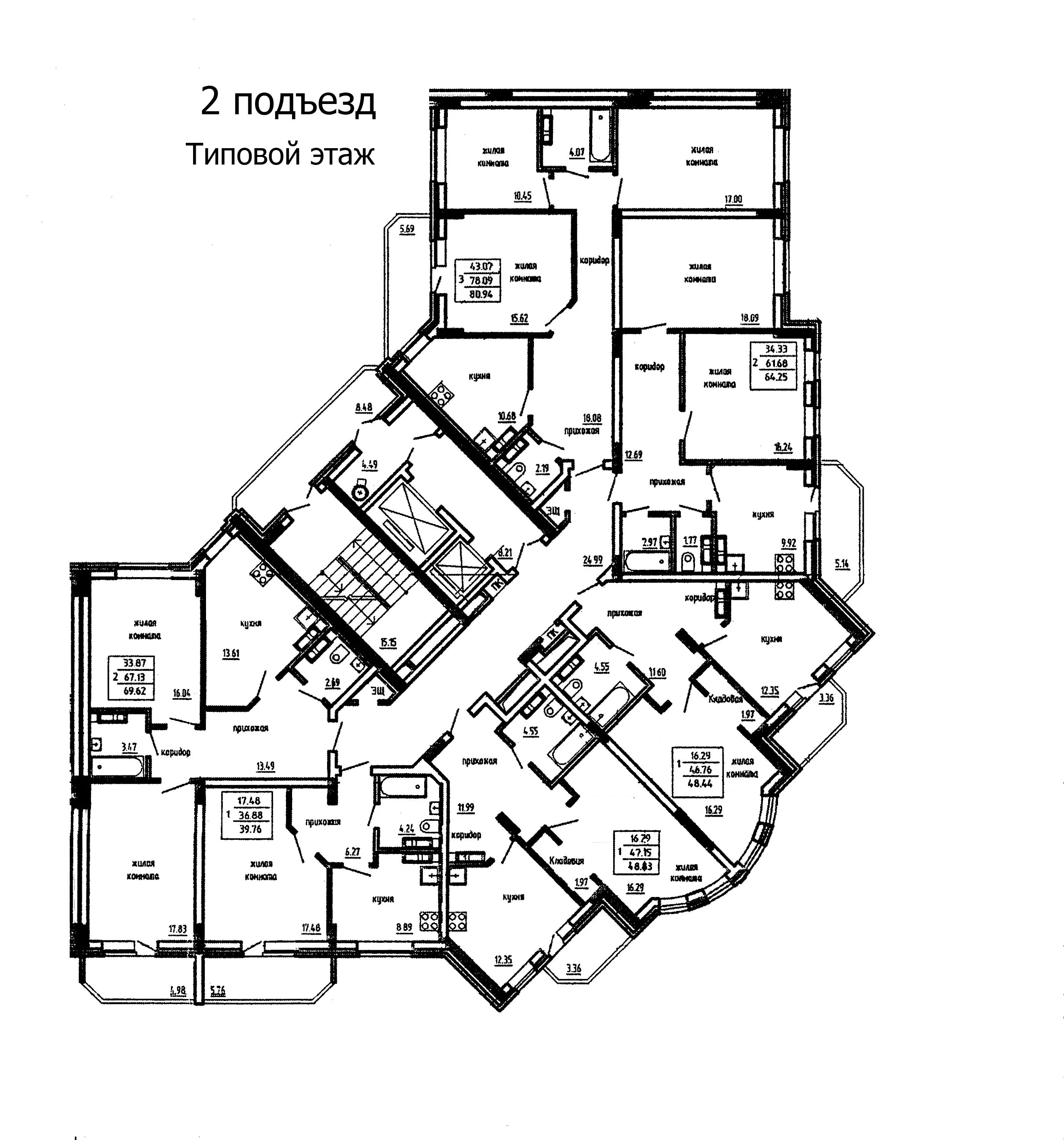
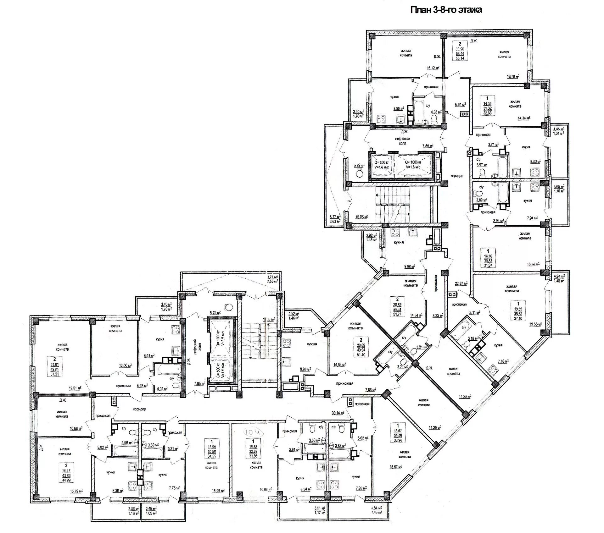
Схемы подъездов домов