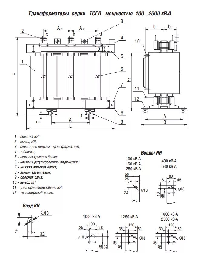
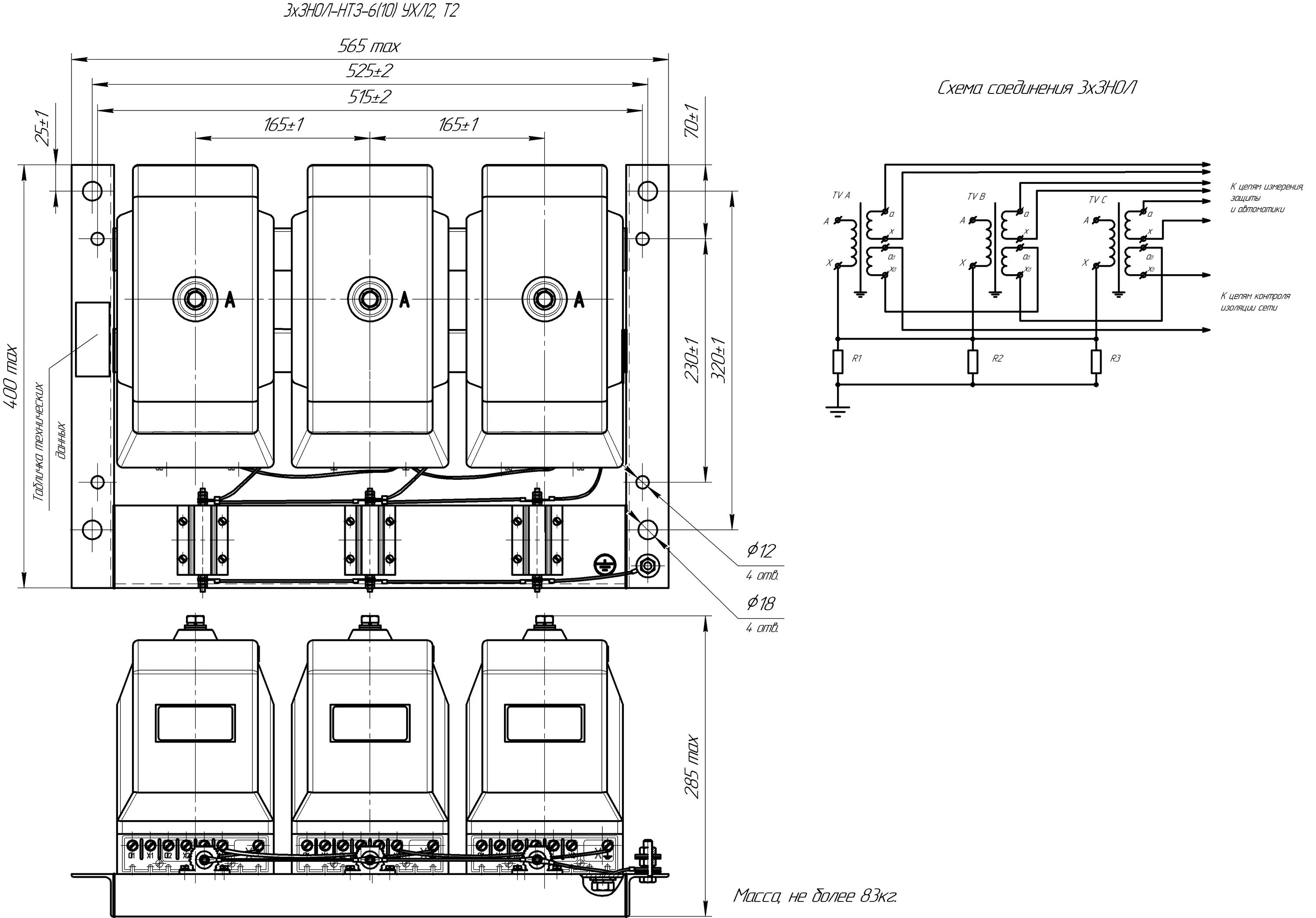
Схема трансформатор 10кв