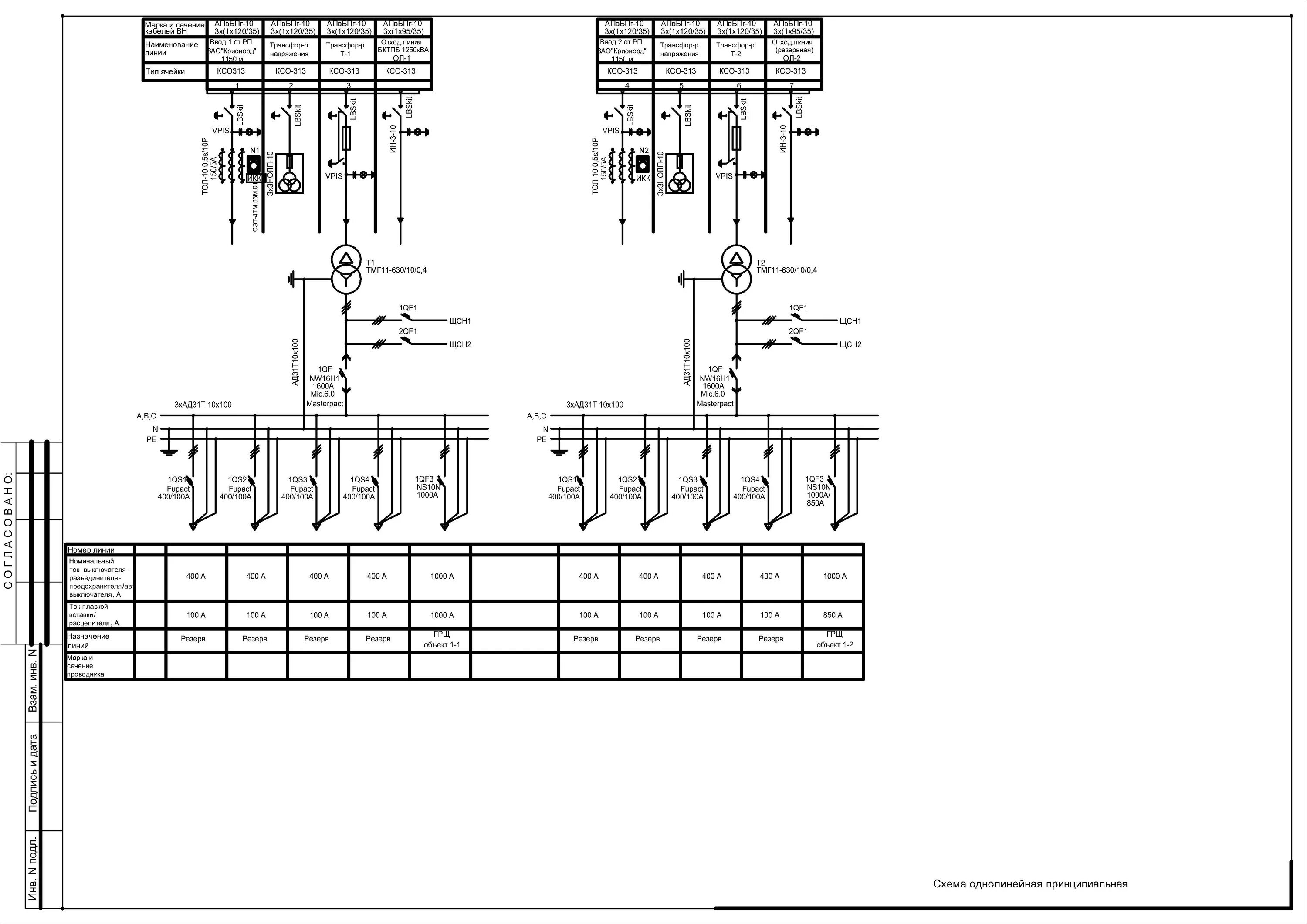
Схема соединения тп