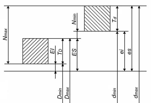
Схема расположения полей допусков посадки