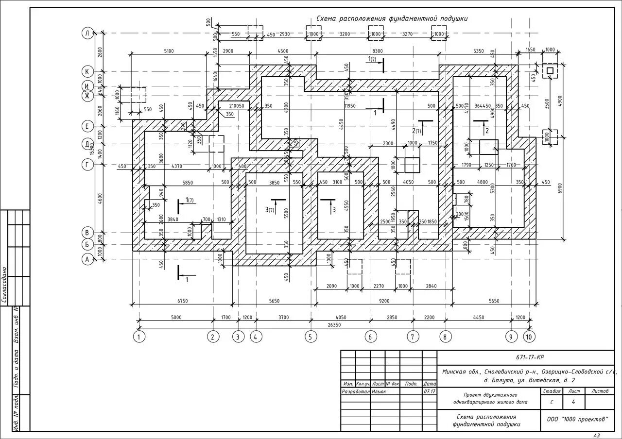
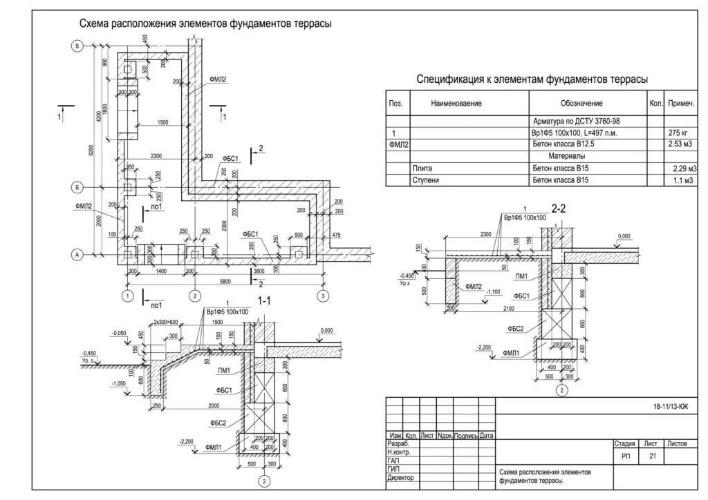
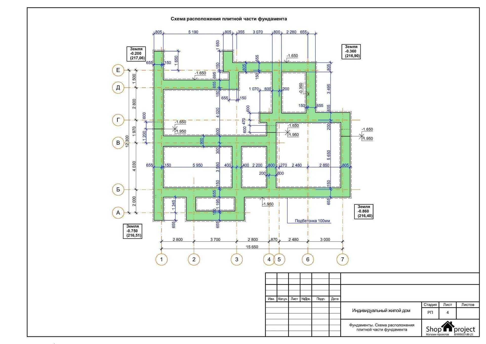
Схема расположения фундаментов