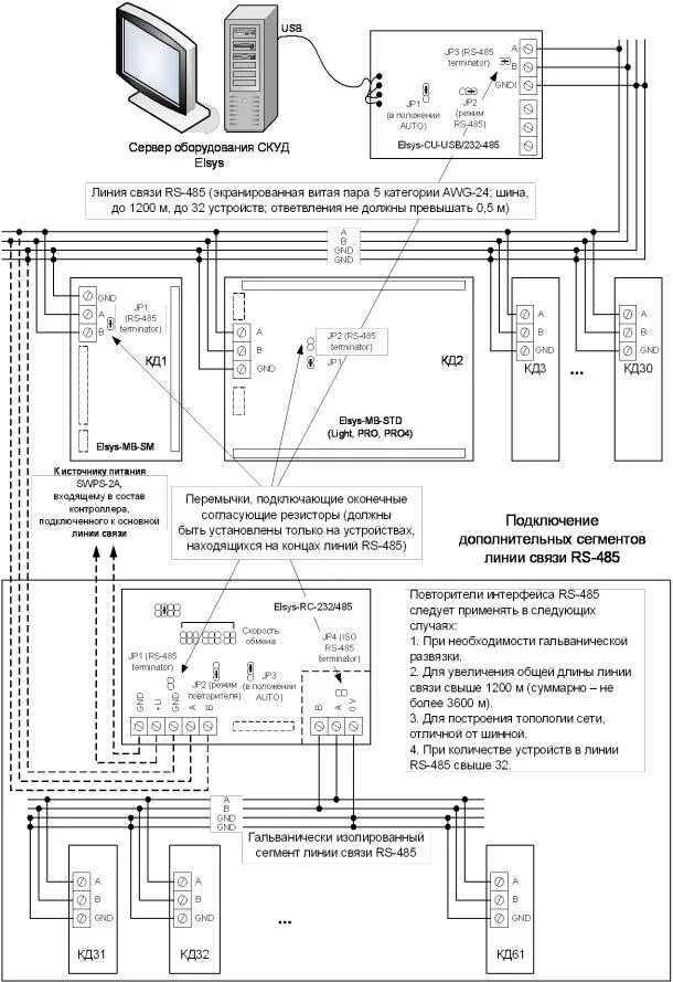
Схема подключения сигур