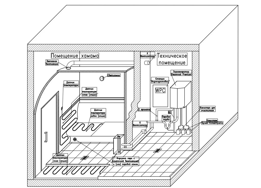
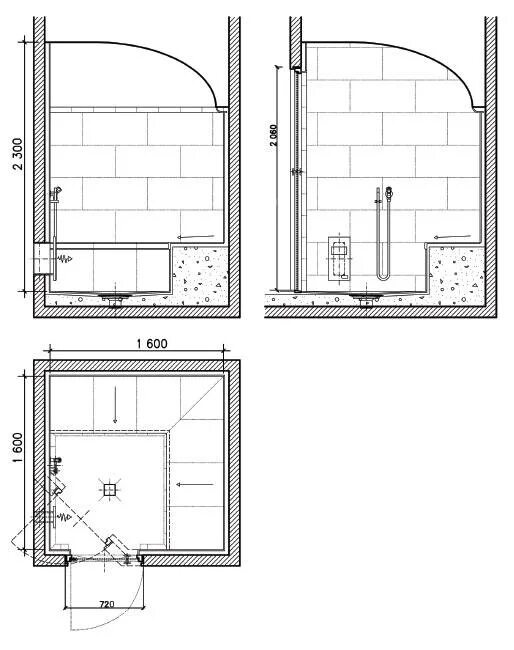
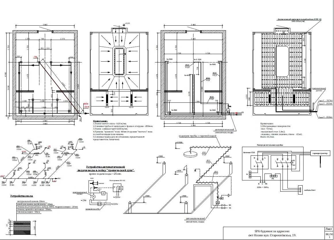
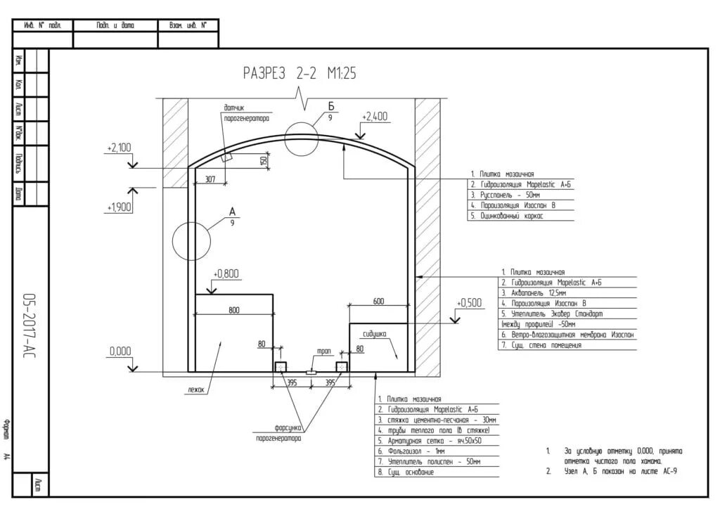
Схема хамама