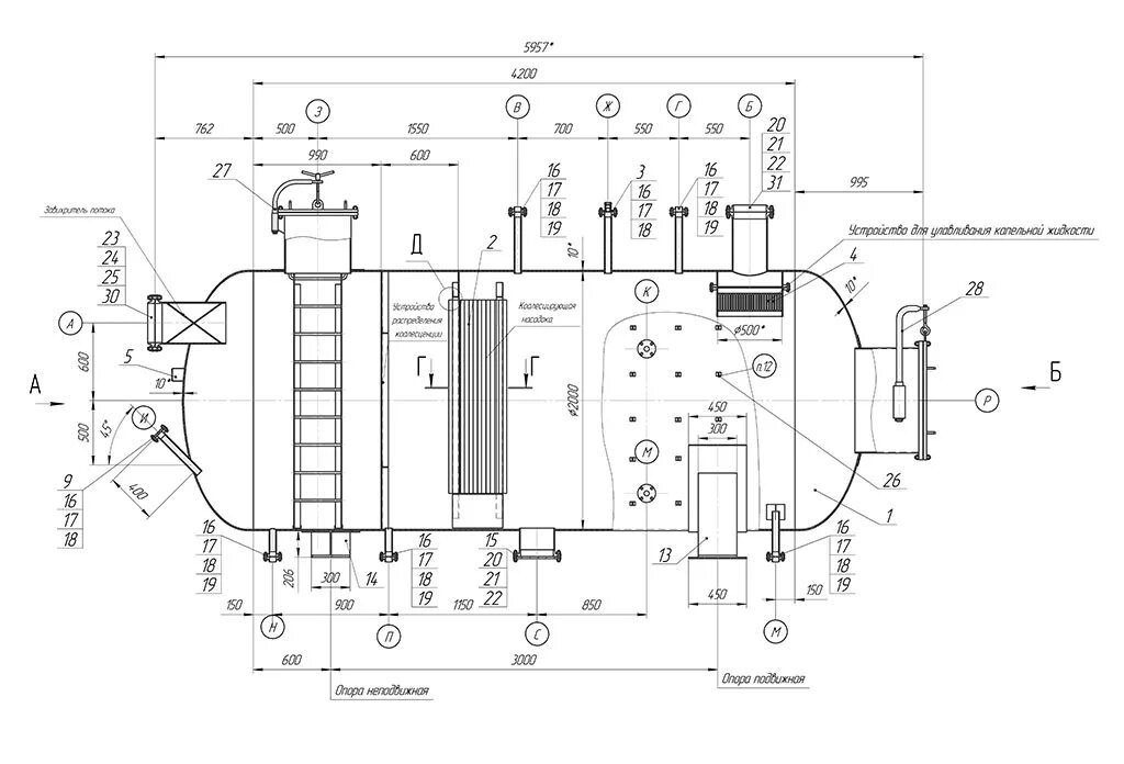
Сетчатый сепаратор