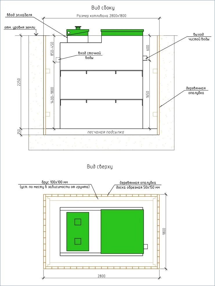
Септика инструкция по применению