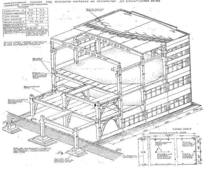
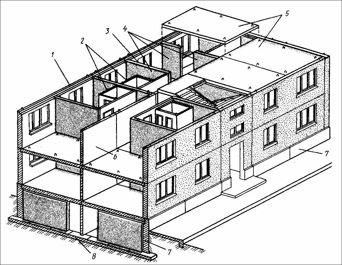
Сборные элементы зданий