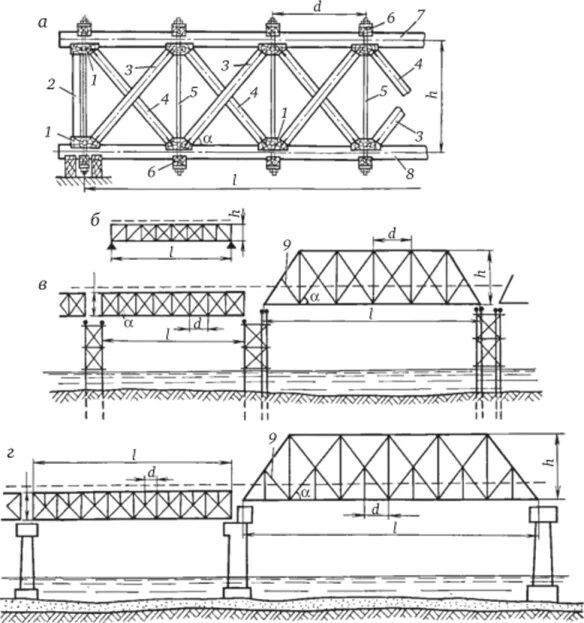
С ездой понизу